2701 - 85 Wood Street, Toronto, Ontario M4Y 0E8

Listed for:
$2,300
2 beds
1 baths
Listed 19 days ago
Apartment for rent: 2701 - 85 Wood Street, Toronto, Ontario M4Y 0E8

View all 32 photos

About

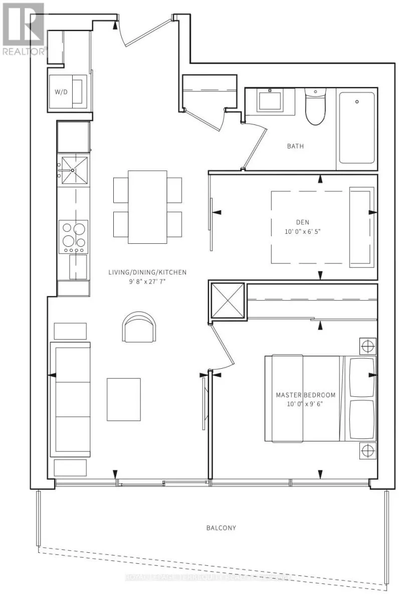
Church St and Carlton Welcome to Axis Condos in the heart of downtown Toronto. This bright and functional 1 bedroom plus den suite features an efficient open concept layout with floor to ceiling windows, a full south facing balcony, and hardwood flooring throughout. The modern kitchen is equipped with built in stainless steel appliances and ample storage, while the den offers flexibility as a second bedroom, home office, or study. The unit includes a full 4 piece bathroom, ensuite laundry, central air conditioning, and window coverings. Building amenities include concierge service, fitness studio, yoga and weight rooms, media and party rooms, business centre, and a rooftop terrace with BBQ areas. Located at Church and Carlton, steps to TTC, hospitals, universities, Eaton Centre, groceries, and restaurants, offering a walk score of 98. No parking or locker included. Tenants pay hydro and water through Provident. Available February 14, 2026. Photos are from a previous listing prior to current tenant occupancy. (id:27476)

Property Highlights

MLS® Number
C12684822
Type
Single Family
Community Name
Church-Yonge Corridor
Ownership Type
Condominium/Strata

Building

Building Type
Apartment
Square Footage
500 - 599 sqft
Bathrooms Total
1
Bedrooms Above Ground
1
Bedrooms Total
2
Exterior Finish
Concrete
Fireplace Present
No
Basement Type
None
Basement Features
Building Heating Type
Forced air
Heating Fuel
Natural gas
Building Cooling Type
Central air conditioning

Location

Learn more about this property
Listing provided by:
ROYAL LEPAGE TERREQUITY REALTY
MLS® number:
C12684822
Agent:
Karlo Paulo Francisco
*Indicates required field
Name is required
Email is required
Please enter a valid phone number (e.g., 416-111-1111).

Street Spotlight - For rent