1805 - 215 Queen Street W, Toronto, Ontario M5V 0P5

Listed for:
$3,200
3 beds
2 baths
Listed 27 days ago
Apartment for rent: 1805 - 215 Queen Street W, Toronto, Ontario M5V 0P5

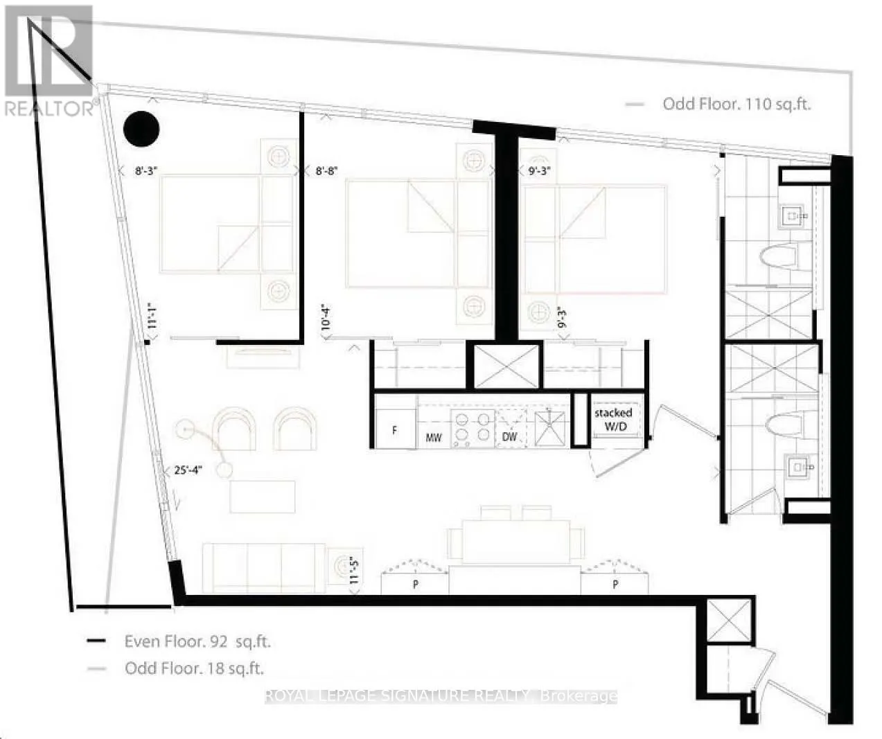
View all 38 photos

About

Cross Streets: Queen Street West/University Avenue. ** Directions: Type \"215 Queen St W\" into Waze!. Smart and efficient condo living in prime Queen West. Underground parking Included! Fabulous corner layout with 3 Bedrooms (all with windows), 2 full washrooms, open concept design and bright and sunny view. Absolute move-in condition with 9' ceilings, wood flooring and modern kitchen with built-in seating & integrated appliances. Walk outs to two balconies. Luxurious amenities in this award winning building include: 24/7 concierge, gym, party room and outdoor terrace. An exceptional location - steps to Subway entrance, City Hall, hospitals, Eaton Centre, Path System, restaurants & shopping, Financial District and Entertainment District* 100 Walk Score* (id:27476)

Property Highlights

MLS® Number
C12692816
Type
Single Family
Community Name
Waterfront Communities C1
Ownership Type
Condominium/Strata
Parking Space Total
1

Building

Building Type
Apartment
Square Footage
700 - 799 sqft
Bathrooms Total
2
Bedrooms Above Ground
3
Bedrooms Total
3
Amenities
Security/Concierge, Exercise Centre, Party Room Hospital, Park, Public Transit
Exterior Finish
Concrete
Fireplace Present
No
Basement Type
None
Basement Features
Building Heating Type
Forced air
Heating Fuel
Natural gas
Building Cooling Type
Central air conditioning

Location

Learn more about this property
Listing provided by:
ROYAL LEPAGE SIGNATURE REALTY
MLS® number:
C12692816
Agent:
Lauren Rebecca
*Indicates required field
Name is required
Email is required
Please enter a valid phone number (e.g., 416-111-1111).

Street Spotlight - For rent