1805 - 56 Annie Craig Drive, Toronto, Ontario M8V 0C8

Listed for:
$2,780
2 beds
2 baths
Listed 30 days ago
Apartment for rent: 1805 - 56 Annie Craig Drive, Toronto, Ontario M8V 0C8

View all 34 photos

About

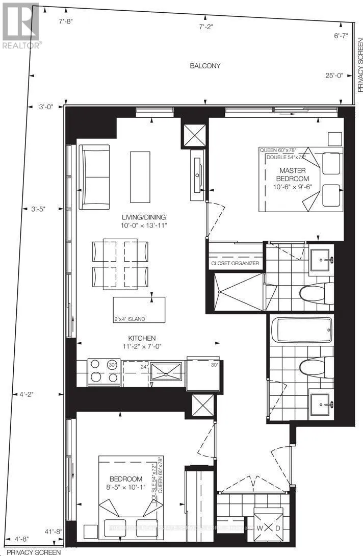
Cross Streets: Lakeshore Blvd W & Parklawn Rd. ** Directions: Lakeshore Blvd W & Silver Moon Dr. **Please book showing with your Realtor/Agent, Listing Agent Represents Landlord Only** Experience prestigious waterfront living at the like-new Lago on Lakeshore. This sun-filled bright corner unit features a generous 714sqft layout with 2 bedrooms & 2 full bathrooms. 3 walkouts lead to a spectacular 340+sqft wraparound balcony showcasing breathtaking panoramic views of the city skyline & lake. Ideally located near Mimico GO Station, streetcar, TTC buses, and the Gardiner Expressway, with direct access to the Martin Goodman Waterfront Trail. Includes 1 parking & 1 locker. Just move in and enjoy! *Listing Photos were taken in prior to the current tenant moves in* (id:27476)

Property Highlights

MLS® Number
W12706512
Type
Single Family
Community Name
Mimico
Ownership Type
Condominium/Strata
Parking Space Total
1

Building

Building Type
Apartment
Square Footage
700 - 799 sqft
Bathrooms Total
2
Bedrooms Above Ground
2
Bedrooms Total
2
Amenities
Exercise Centre, Party Room, Sauna, Storage - Locker, Security/Concierge Park, Public Transit
Exterior Finish
Concrete
Fireplace Present
No
Basement Type
None
Basement Features
Building Heating Type
Forced air
Heating Fuel
Natural gas
Building Cooling Type
Central air conditioning

Location

Learn more about this property
Listing provided by:
PROMPTON REAL ESTATE SERVICES CORP.
MLS® number:
W12706512
Agent:
Simon Tam
*Indicates required field
Name is required
Email is required
Please enter a valid phone number (e.g., 416-111-1111).

Street Spotlight - For rent