1706 - 195 Mccaul Street, Toronto, Ontario M5T 0E5

Listed for:
$1,950
0 beds
1 baths
Listed 27 days ago
Apartment for rent: 1706 - 195 Mccaul Street, Toronto, Ontario M5T 0E5

View all 11 photos

About

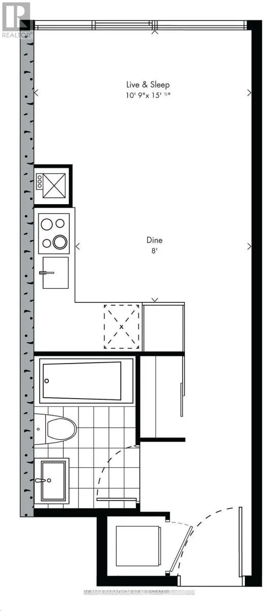
Cross Streets: College & University. ** Directions: On McCaul Street South of College. Upgraded studio soft loft at **Bread Company Condos**.in Prime Downtown Location, Featuring 9-ft exposed concrete ceilings, floor-to-ceiling windows, and modern finishes. This sun-filled unit offers a sleek, stylish living space. The gourmet kitchen boasts of gas cooking, and stainless-steel appliances, while the spa-inspired bathroom features a rainfall shower. Located steps from U of T, OCAD, Queens Park, and Torontos major hospitals (Mount Sinai, SickKids, Toronto General, and more), this AAA location offers a **Walk Score of 97 and a Transit Score of 100**. Enjoy the trendy dining and entertainment of Baldwin Village just outside your door. Building amenities include a sky lounge, concierge, fitness and yoga studios, co-working space, and an outdoor sky park with BBQ and dining areas. (id:27476)

Property Highlights

MLS® Number
C12710888
Type
Single Family
Community Name
Kensington-Chinatown
Ownership Type
Condominium/Strata

Building

Building Type
Apartment
Square Footage
0 - 499 sqft
Bathrooms Total
1
Amenities
Security/Concierge, Exercise Centre Schools, Place of Worship, Public Transit, Park
Exterior Finish
Concrete
Fireplace Present
No
Basement Type
None
Basement Features
Building Heating Type
Forced air
Heating Fuel
Natural gas
Building Cooling Type
Central air conditioning

Location

Learn more about this property
Listing provided by:
RE/MAX PARADIGM REAL ESTATE
MLS® number:
C12710888
Agent:
Varun Mathur
*Indicates required field
Name is required
Email is required
Please enter a valid phone number (e.g., 416-111-1111).

Street Spotlight - For rent