3106 - 30 Inn On The Park Drive, Toronto, Ontario M3C 0P7

Listed for:
$2,150
1 beds
1 baths
Listed 27 days ago
Apartment for rent: 3106 - 30 Inn On The Park Drive, Toronto, Ontario M3C 0P7

View all 20 photos

About

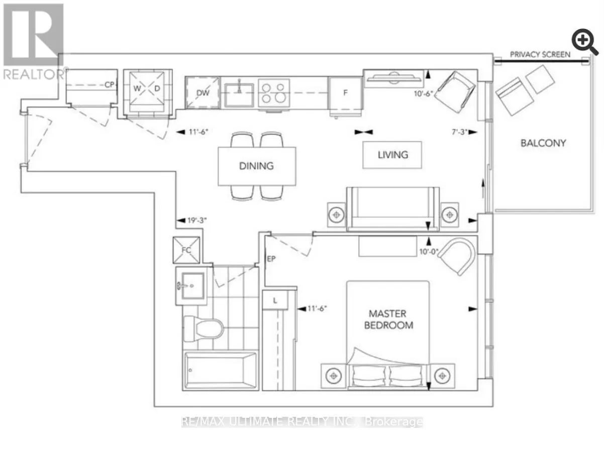
Leslie St and Eglinton Ave E This luxury 1-bedroom and 1-bathroom condo suite at Auberge I, offers 543 square feet of open living space and 9-foot ceilings. Located on the 31th floor, enjoy your East-facing views from a spacious and private balcony. This suite comes fully equipped with energy-efficient 5-star modern appliances, integrated fridge & dishwasher, contemporary soft-close cabinetry, in-suite laundry, and floor-to-ceiling windows with coverings included. Upscale amenities include state-of-the-art fitness center, yoga room, the grand entertainment lounge, or the multi-purpose lounge, lobbies. Steps from the New Eglinton LRT Line,TTC & Don mills-Eglinton Subway. (id:27476)

Property Highlights

MLS® Number
C12712048
Type
Single Family
Community Name
Banbury-Don Mills
Ownership Type
Condominium/Strata

Building

Building Type
Apartment
Square Footage
500 - 599 sqft
Bathrooms Total
1
Bedrooms Above Ground
1
Bedrooms Total
1
Amenities
Security/Concierge, Exercise Centre, Party Room
Exterior Finish
Concrete
Fireplace Present
No
Basement Type
None
Basement Features
Building Heating Type
Forced air
Heating Fuel
Natural gas
Building Cooling Type
Central air conditioning

Location

Learn more about this property
Listing provided by:
RE/MAX ULTIMATE REALTY INC.
MLS® number:
C12712048
Agent:
Yoqo Fang
*Indicates required field
Name is required
Email is required
Please enter a valid phone number (e.g., 416-111-1111).

Street Spotlight - For rent