1003 - 181 Mill Street, Toronto, Ontario M5A 1C8

Listed for:
$2,460
2 beds
1 baths
Listed 71 days ago
Apartment for rent: 1003 - 181 Mill Street, Toronto, Ontario M5A 1C8

View all 12 photos

About

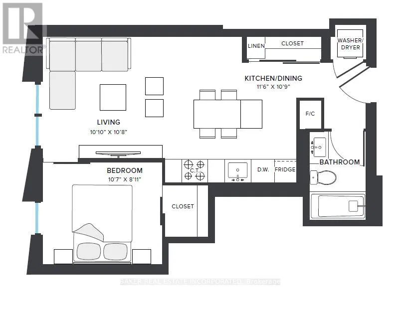
Mill Street/Cherry Street BRAND NEW IN 1 BED, 1 BATH 538 sf SUITE - RENT NOW AND RECEIVE 1 MONTH FREE! Bringing your net effective rate to $2,255 for a one year lease. (Offer subject to change. Terms and conditions apply). Discover high-end living in the award-winning canary district community. Purpose-built boutique rental residence with award-winning property management featuring hotel-style concierge services in partnership with Toronto life, hassle-free rental living with on-site maintenance available seven days a week, community enhancing resident events and security of tenure for additional peace of mind. On-site property management and bookable guest suite, Smart Home Features with Google Nest Transit & connectivity: TTC streetcar at your doorstep: under 20 minutes to king subway station. Walking distance to Distillery District, St. Lawrence Market, Corktown Common Park, And Cherry Beach, with nearby schools (George Brown College), medical centres, grocery stores, and daycares. In-suite washers and dryers. Experience rental living reimagined. Signature amenities: rooftop pool, lounge spaces, a parlour, private cooking & dining space, and terraces. Resident mobile app for easy access to services, payment, maintenance requests and more! Wi-fi-enabled shared co-working spaces, state-of-the-art fitness centre with in-person and virtual classes plus complimentary fitness training, and more! *Offers subject to change without notice & Images are for illustrative purposes only. Parking is available at a cost. (id:27476)

Property Highlights

MLS® Number
C12713434
Type
Single Family
Community Name
Waterfront Communities C8
Ownership Type
Condominium/Strata

Building

Building Type
Apartment
Square Footage
500 - 599 sqft
Bathrooms Total
1
Bedrooms Above Ground
1
Bedrooms Total
2
Amenities
Security/Concierge, Exercise Centre Park, Public Transit, Schools
Exterior Finish
Brick, Concrete
Fireplace Present
No
Basement Type
None
Basement Features
Building Heating Type
Coil Fan
Heating Fuel
Natural gas
Building Cooling Type
Central air conditioning

Location

Learn more about this property
Listing provided by:
BAKER REAL ESTATE INCORPORATED
MLS® number:
C12713434
Agent:
Katerina Hryb
*Indicates required field
Name is required
Email is required
Please enter a valid phone number (e.g., 416-111-1111).

Street Spotlight - For rent