76 Kingston Road, Toronto, Ontario M4L 1S6

Listed for:
$11,500
0 beds
0 baths
Listed 26 days ago
76 Kingston Road, Toronto, Ontario M4L 1S6

View all 5 photos

About

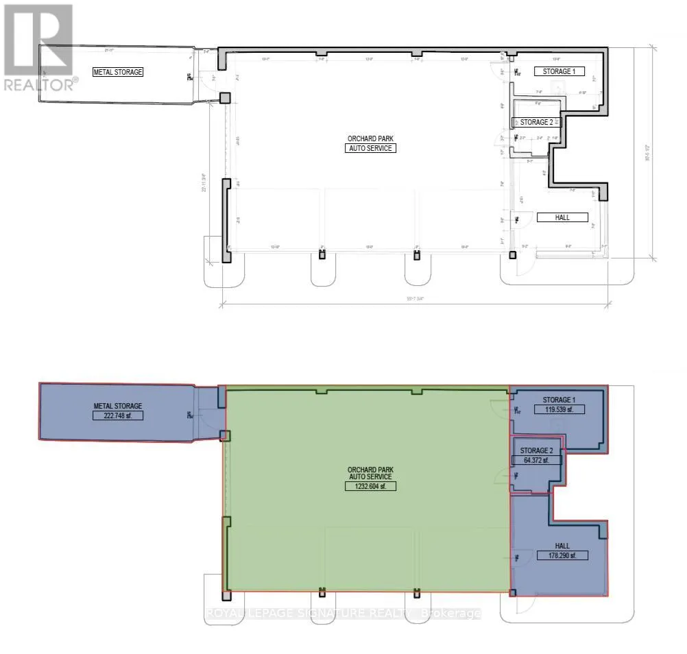
Kingston Rd and Dundas St Prime automotive garage use. Located just north of Kingston Road and Queen Street East, this versatile property includes an approximately 1,800 sq. ft. building on a 0.19-acre (8,200 sq. ft.) lot. Features include a showroom/customer area and three functional service bays, offering excellent visibility and strong traffic exposure in a high-demand corridor. Rental rate is per month, semi-gross, plus HST. Utilities are separately metered and/or separately charged. The utilities are the responsibility of the tenant. This is a sub-lease, with an expiry of December 30th, 2027.Landlord will consider an extension beyond sublease expiry. (id:27476)

Property Highlights

MLS® Number
E12714542
Type
Retail
Community Name
Woodbine Corridor
Land Size
60 x 138 FT

Building

Square Footage
1817 sqft
Fireplace Present
No
Basement Type
Basement Features
Building Heating Type
Other
Heating Fuel
Building Cooling Type
Fully air conditioned

Utilities

Water
Municipal water

Location

Learn more about this property
Listing provided by:
ROYAL LEPAGE SIGNATURE REALTY
MLS® number:
E12714542
Agent:
William Kenneth Irons
*Indicates required field
Name is required
Email is required
Please enter a valid phone number (e.g., 416-111-1111).

Street Spotlight - For lease