503 - 75 Emmett Avenue, Toronto, Ontario M6M 5A7

Listed for:
$649,000
4 beds
2 baths
Listed 69 days ago
Apartment for rent: 503 - 75 Emmett Avenue, Toronto, Ontario M6M 5A7

View all 10 photos

About

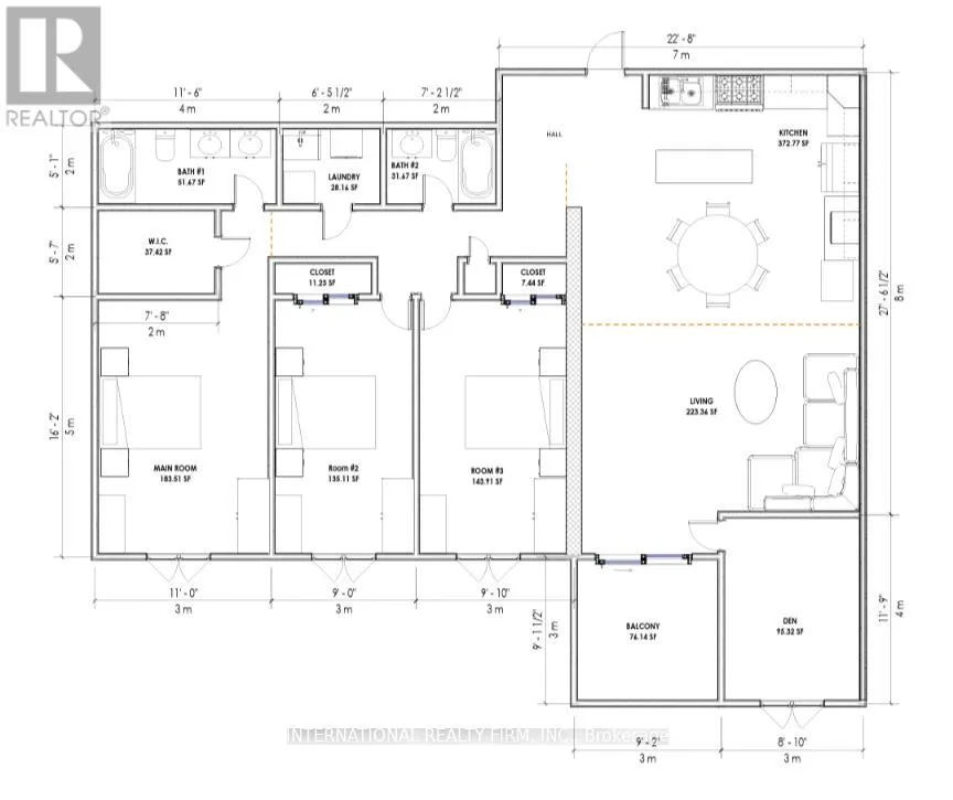
Cross Streets: Jane & Eglinton Ave West. ** Directions: Either Eglinton Ave W or Jane St. Spectacular view of the city skyline, the CN Tower, Eglinton Flats, and surrounding green areas! Welcome to the "Winston House" Unit 503. This huge apartment is ideal for a large family or visionary investor. It is located close to a wide range of amenities, with convenient access to the TTC and the upcoming Crosstown subway extension. Just minutes from major roads and highways, this property offers exceptional convenience and connectivity. This spacious 3+1 bedroom apartment features a large primary bedroom complete with a 4-piece en-suite bathroom and a walk-in closet. Generously sized bedrooms and living areas provide comfort and flexibility, making it ideal for a growing family as well. Residents enjoy a variety of amenities designed to enhance your lifestyle, includes indoor pool, sauna, tennis courts, gym, party room, bike storage, and much more. Take in the spectacular south-facing views of the city . Great opportunity! Don't miss it! (id:27476)

Property Highlights

MLS® Number
W12720782
Type
Single Family
Community Name
Mount Dennis
Maintenance Fee
1095.02
Ownership Type
Condominium/Strata
Parking Space Total
1

Building

Building Type
Apartment
Square Footage
1600 - 1799 sqft
Bathrooms Total
2
Bedrooms Above Ground
3
Bedrooms Total
4
Amenities
Storage - Locker Golf Nearby, Hospital, Public Transit
Exterior Finish
Brick
Fireplace Present
No
Basement Type
None
Basement Features
Building Heating Type
Forced air
Heating Fuel
Natural gas
Building Cooling Type
Central air conditioning

Location

Learn more about this property
Listing provided by:
INTERNATIONAL REALTY FIRM, INC.
MLS® number:
W12720782
Agent:
Vincenzo Cicero
*Indicates required field
Name is required
Email is required
Please enter a valid phone number (e.g., 416-111-1111).

Street Spotlight - For sale