11 Montressor Drive, Toronto, Ontario M2P 1Y9

Listed for:
$7,300,000
7 beds
10 baths
Listed 64 days ago
House for rent: 11 Montressor Drive, Toronto, Ontario M2P 1Y9

View all 12 photos

About

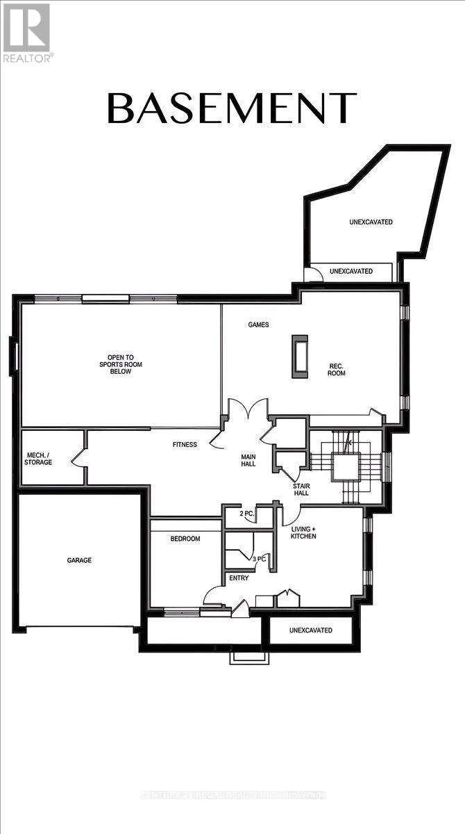
Cross Streets: Bayview / York Mills. ** Directions: West of Bayview. An exceptional opportunity to purchase a brand new, custom-built luxury home in the prestigious St. Andrew-Windfields neighbourhood, situated on a rare ravine-backed lot of approximately 12,800 sq. ft. This offering allows a buyer to acquire the property as a fully designed and approved new build, with all architectural plans, engineering, and approvals already completed and a reputable builder prepared to deliver the home. The approved design features over 7,600 sq. ft. of living space, thoughtfully planned to maximize scale, natural light, and the ravine setting. All major pre-construction work has been completed, including architectural design by Contempo Studio, HVAC and grading design, and building permit submission-providing a streamlined path from purchase to construction. Buyers benefit from significantly reduced timelines and risk compared to starting a custom build from scratch. The home design includes grand principal rooms, high ceilings, elevator provision, expansive outdoor terraces, and a backyard concept ideal for entertaining and enjoying the natural surroundings. Finishes may be customized within the builder's specifications, offering a balance of personalization and certainty. A rare chance to secure a brand new luxury residence without the typical delays associated with design, approvals, and permitting. Full drawings, specifications, and build details available upon request. (id:27476)

Property Highlights

MLS® Number
C12733814
Type
Single Family
Community Name
St. Andrew-Windfields
Ownership Type
Freehold
Land Size
65.3 x 153 FT
Parking Space Total
8

Building

Building Type
House
Storeys
3.00
Square Footage
5000 - 100000 sqft
Bathrooms Total
10
Bedrooms Above Ground
6
Bedrooms Total
7
Exterior Finish
Brick
Fireplace Present
Yes
Basement Type
N/A (Other, See Remarks), N/A
Basement Features
Walk-up
Building Heating Type
Forced air
Heating Fuel
Natural gas
Building Cooling Type
Central air conditioning

Utilities

Water
Municipal water
Utility Sewer
Sanitary sewer

Location

Learn more about this property
Listing provided by:
CENTURY 21 REGAL REALTY INC.
MLS® number:
C12733814
Agent:
Justin Strachan
*Indicates required field
Name is required
Email is required
Please enter a valid phone number (e.g., 416-111-1111).