306a Eglinton Avenue W, Toronto, Ontario M4R 1B2

Listed for:
$54
0 beds
1 baths
Listed 62 days ago
306a Eglinton Avenue W, Toronto, Ontario M4R 1B2

View all 24 photos

About

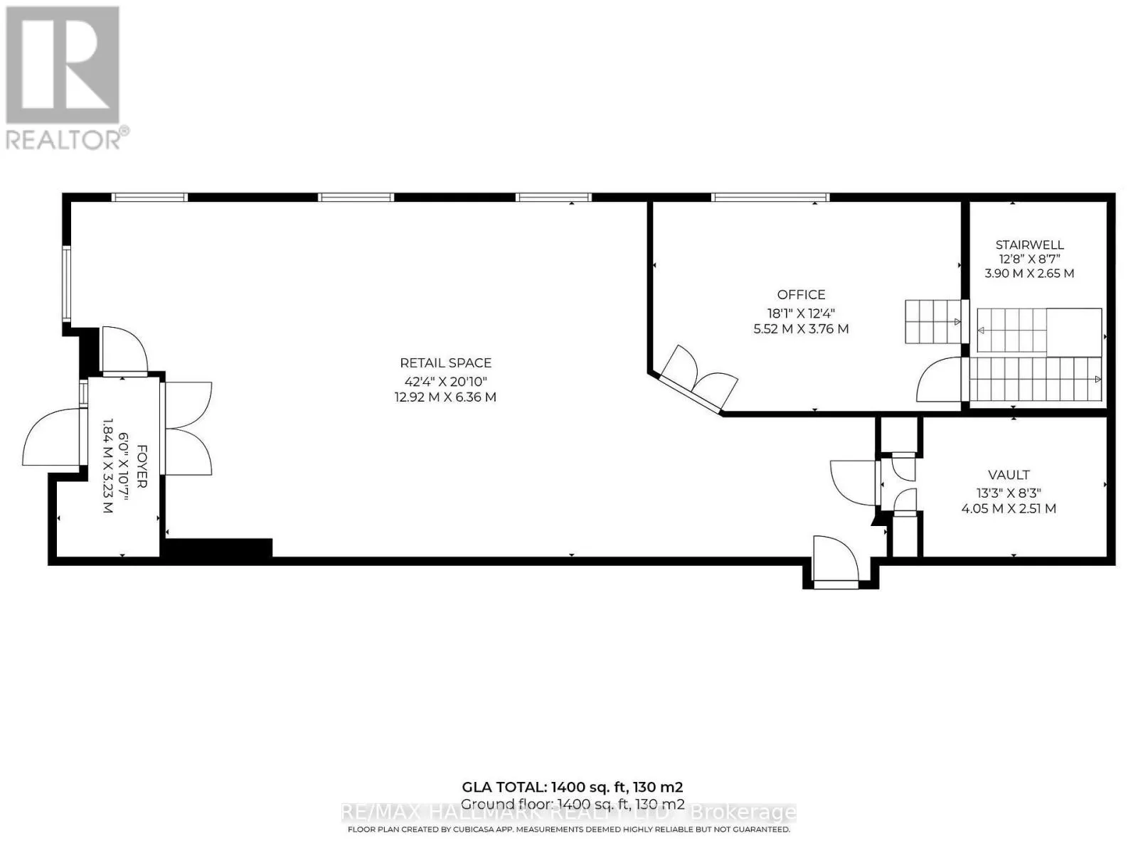
Cross Streets: Avenue Rd/Eglinton-N/E Corner. ** Directions: N/W Corner of Avenue Rd/Eglinton Ave W, across from the new CrossTown Station. Parking for showings is often available on eastside of Avenue Rd, just north of the intersection or on the nearby side st. Premier, Main Floor, Commercial, Retail Space, Main Floor of Corner Building With Amazing Exposure At Prominent Intersection, Northeast Corner Of Avenue Rd & Eglinton Ave West. High Vehicular And Foot Traffic Steps From the "NEWLY OPENED CROSSTOW STATION", Retail Shops, Restaurants, Parks, Schools, And Much More! Note: This Listing Is For Approx. 1400 Sq/Ft, *Fronts On Eglinton AND Avenue Rd.* (HST Not Included, Electricity is billed separately) (id:27476)

Property Highlights

MLS® Number
C12740598
Type
Retail
Community Name
Yonge-Eglinton
Land Size
Unit=20 x 70 FT

Building

Square Footage
1400 sqft
Bathrooms Total
1
Amenities
Public Transit
Fireplace Present
No
Basement Type
Basement Features
Building Heating Type
Hot water radiator heat
Heating Fuel
Natural gas
Building Cooling Type
Fully air conditioned

Utilities

Water
Municipal water

Location

Learn more about this property
Listing provided by:
RE/MAX HALLMARK REALTY LTD.
MLS® number:
C12740598
Agent:
Ronald S. Hauth
*Indicates required field
Name is required
Email is required
Please enter a valid phone number (e.g., 416-111-1111).

Street Spotlight - For lease