702 - 56 Forest Manor Road, Toronto, Ontario M2J 0E5

Listed for:
$2,700
2 beds
2 baths
Listed 15 days ago
Apartment for rent: 702 - 56 Forest Manor Road, Toronto, Ontario M2J 0E5

View all 29 photos

About

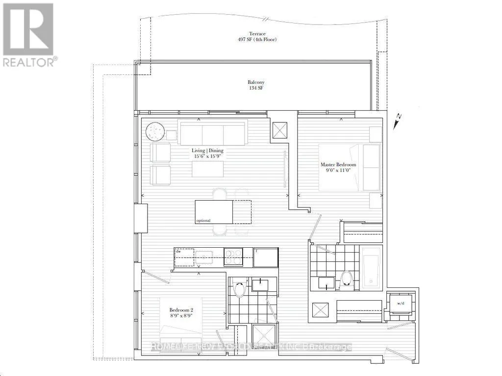
Cross Streets: Don Mills / Sheppard. ** Directions: Sheppard / Don Mills. AAA tenants only!!! Great Location In Don Mills Neighborhood. More than 800 Sq ft. Newer Building, Best Corner Unit, Unobstructed South East Corner View,2 Bedrooms,2 Modern Bathrooms, Open Concept,9 Ft Ceiling, S/S Appliances, Granite Counter Top, Walk To Fairview Mall, TTC Bus Stop, Subway Station ,Community Centre, Swimming Pool, Schools, Close To 404/401. (id:27476)

Property Highlights

MLS® Number
C12745444
Type
Single Family
Community Name
Henry Farm
Maintenance Fee
0.00
Ownership Type
Condominium/Strata
Parking Space Total
1

Building

Building Type
Apartment
Square Footage
700 - 799 sqft
Bathrooms Total
2
Bedrooms Above Ground
2
Bedrooms Total
2
Exterior Finish
Concrete
Fireplace Present
No
Basement Type
None
Basement Features
Building Heating Type
Forced air
Heating Fuel
Natural gas
Building Cooling Type
Central air conditioning

Location

Learn more about this property
Listing provided by:
HOMELIFE NEW WORLD REALTY INC.
MLS® number:
C12745444
Agent:
Leon Zheng
*Indicates required field
Name is required
Email is required
Please enter a valid phone number (e.g., 416-111-1111).

Street Spotlight - For rent