1075 Queen Street W, Toronto, Ontario M6J 1H3

Listed for:
$57
0 beds
0 baths
Listed 104 days ago
1075 Queen Street W, Toronto, Ontario M6J 1H3

View all 25 photos

About

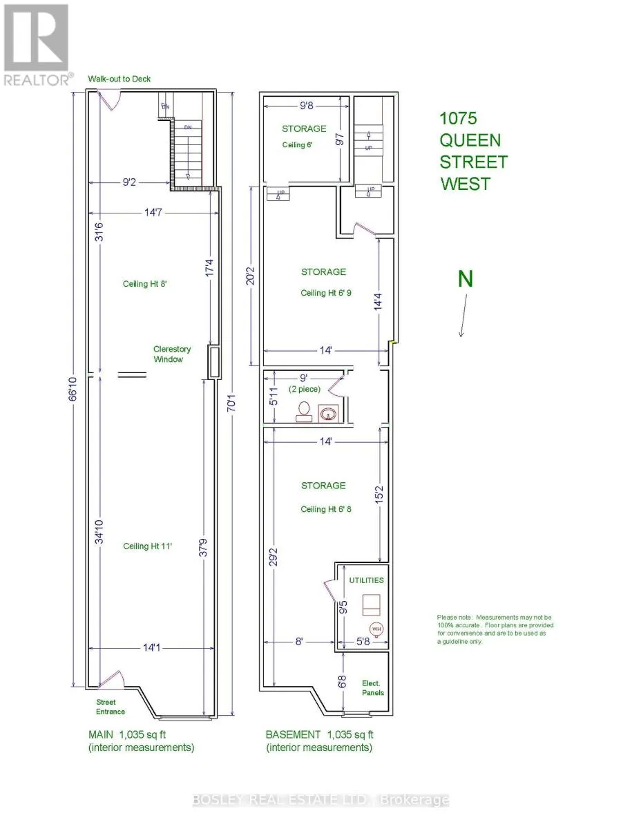
Cross Streets: Queen St W/Dovercourt Rd. ** Directions: Queen St. W/Dovercourt Rd. Pop-Up Stores welcome! Prime retail opportunity at 1075 Queen St West in Toronto's Iconic "You've Changed" building nestled in the heart of the trendy Trinity-Bellwoods neighborhood. This high-traffic, highly sought-after location offers a unique opportunity for your business to thrive in one of Toronto's most vibrant areas. Surrounded by bustling cafes, boutique shops, and local restaurants, this space benefits from both foot traffic and neighborhood charm. This exceptional space offers 2,070 sq ft of total space, with 1,035 sq ft on the main floor and an additional 1,035 sq ft in the basement. This versatile space is perfect for a variety of retail uses. The large storefront window, provides excellent visibility to the high foot traffic along Queen St W, and a skylight that floods the space with natural light. The open concept floor plan allows for easy customization to fit your business needs. Public transit options are easily accessible, including streetcar routes, and the space is within walking distance of the ever-popular Trinity Bellwoods Park. This is more than just a retail space-it's an opportunity to position your brand in one of the city's most dynamic and desirable locations. Don't miss out on the chance to be part of the pulse of Trinity-Bellwoods! (id:27476)

Property Highlights

MLS® Number
C12750152
Type
Retail
Community Name
Trinity-Bellwoods
Land Size
14.8 x 130.09 FT

Building

Square Footage
2070 sqft
Amenities
Public Transit
Fireplace Present
No
Basement Type
Basement Features
Building Heating Type
Forced air
Heating Fuel
Natural gas
Building Cooling Type
Fully air conditioned

Utilities

Water
Municipal water

Location

Learn more about this property
Listing provided by:
BOSLEY REAL ESTATE LTD.
MLS® number:
C12750152
Agent:
Li Koo
*Indicates required field
Name is required
Email is required
Please enter a valid phone number (e.g., 416-111-1111).

Street Spotlight - For lease