3406 - 42 Charles Street E, Toronto, Ontario M4Y 1N3

Listed for:
$2,780
2 beds
1 baths
Listed 12 days ago
Apartment for rent: 3406 - 42 Charles Street E, Toronto, Ontario M4Y 1N3

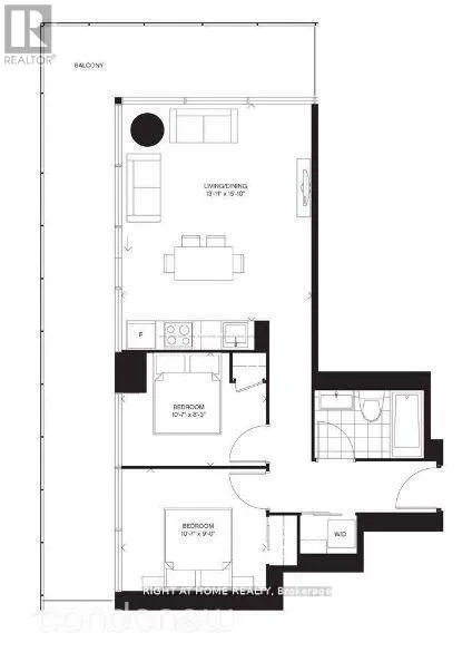
View all 9 photos

About

Cross Streets: Church-Yonge. ** Directions: EW. Welcome to Casa II Condominiums, perfectly positioned at Yonge-Bloor, one of Toronto's most prestigious and connected neighborhoods.Perched on the 34th floor, this rare sun-filled corner residence showcases breathtaking panoramic North-East-South-West views with unobstructed sight lines stretching over the lush Rose dale Valley and the city skyline. Floor-to-ceiling windows flood the space with natural light, creating a bright and sophisticated urban retreat above the city.Step outside and you're just seconds from the subway, world-class shopping, fine dining, and everyday conveniences. Minutes to University of Toronto and Toronto Metropolitan University, making this location ideal for professionals, students (id:27476)

Property Highlights

MLS® Number
C12753908
Type
Single Family
Community Name
Church-Yonge Corridor
Ownership Type
Condominium/Strata

Building

Building Type
Apartment
Square Footage
600 - 699 sqft
Bathrooms Total
1
Bedrooms Above Ground
2
Bedrooms Total
2
Exterior Finish
Concrete, Aluminum siding
Fireplace Present
No
Basement Type
None
Basement Features
Building Heating Type
Forced air
Heating Fuel
Natural gas
Building Cooling Type
Central air conditioning

Location

Learn more about this property
Listing provided by:
RIGHT AT HOME REALTY
MLS® number:
C12753908
Agent:
Maziar Mani
*Indicates required field
Name is required
Email is required
Please enter a valid phone number (e.g., 416-111-1111).

Street Spotlight - For rent