1 - 75 Keele Street, Toronto, Ontario M6P 2J8

Listed for:
$2,400
2 beds
1 baths
Listed 102 days ago
Triplex for rent: 1 - 75 Keele Street, Toronto, Ontario M6P 2J8

View all 16 photos

About

Keele St/Bloor St W Welcome to High Park living at its best. This bright and spacious 2-bedroom suite is located in a charming detached triplex in one of Toronto's most desirable neighbourhoods. Just steps from Keele subway station and a short walk to the boutiques, cafés, and everyday amenities of Bloor West Village, this unit offers the perfect blend of city convenience and neighbourhood charm.Quiet, sun-filled, and well laid out, the suite also features access to both a front and backyard, providing a rare suburban feel in the heart of the city. A warm, inviting space that's easy to settle into and feel at home. Some photos have been virtually staged to showcase the unit's potential. (id:27476)

Property Highlights

MLS® Number
W12754032
Type
Multi-family
Community Name
High Park North

Building

Building Type
Triplex
Storeys
3.00
Square Footage
700 - 1100 sqft
Bathrooms Total
1
Bedrooms Above Ground
2
Bedrooms Total
2
Amenities
Separate Electricity Meters, Separate Heating Controls Hospital, Public Transit, Park
Exterior Finish
Brick
Fireplace Present
No
Basement Type
None
Basement Features
Building Heating Type
Radiant heat
Heating Fuel
Natural gas
Building Cooling Type
None

Utilities

Water
Municipal water
Utility Sewer
Sanitary sewer

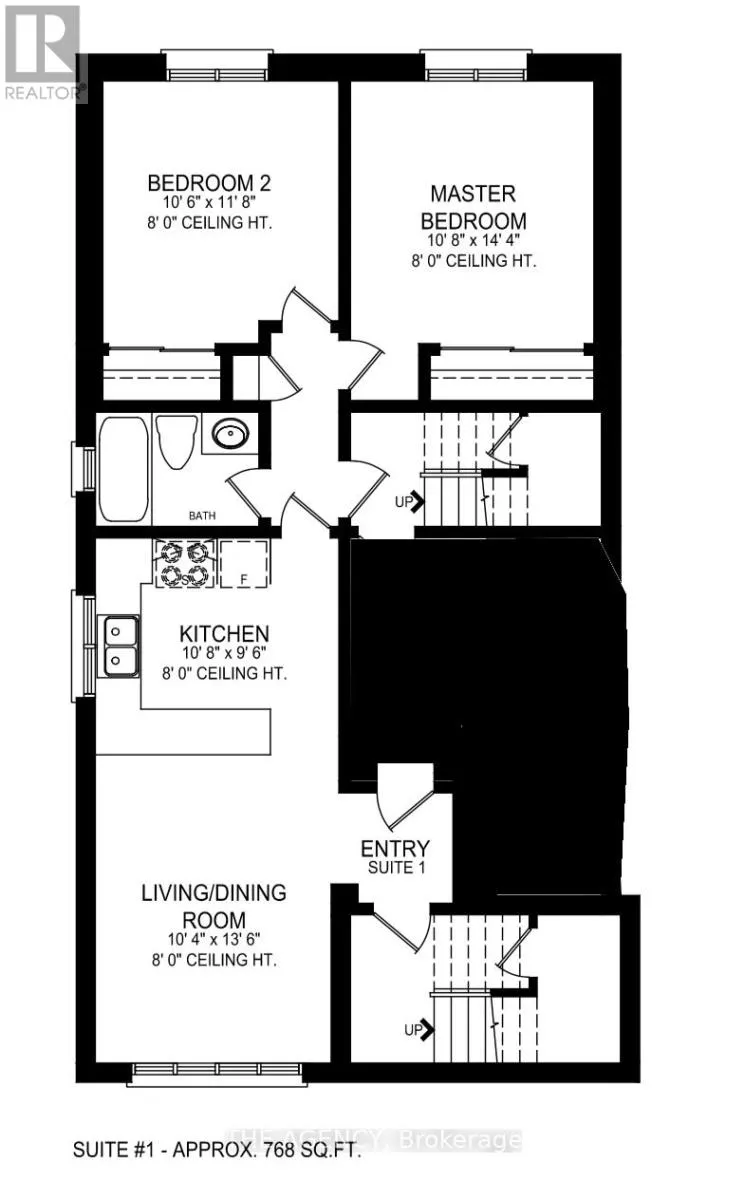
Room Layout

Living room
Main level
4.11 m x 3.15 m
Kitchen
Main level
2.9 m x 3.25 m
Primary Bedroom
Main level
4.37 m x 3.25 m
Bedroom 2
Main level
3.56 m x 3.2 m
Bathroom
Main level
2.2 m x 1.62 m

Location

Learn more about this property
Listing provided by:
THE AGENCY
MLS® number:
W12754032
Agent:
Veronica Harris
*Indicates required field
Name is required
Email is required
Please enter a valid phone number (e.g., 416-111-1111).

Street Spotlight - For rent