3206 - 8 The Esplanade, Toronto, Ontario M5E 0A6

Listed for:
$648,000
2 beds
1 baths
Listed 103 days ago
Apartment for rent: 3206 - 8 The Esplanade, Toronto, Ontario M5E 0A6

View all 2 photos

About

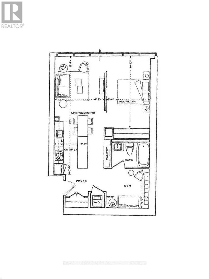
Yonge/Front *Must assume tenant. 1 year lease term from 2025.6.1, rent $2650* Iconic L-Tower, 1 Br + Lrg Den, Steps To Union Station, Financial District, St Lawrence Market, Acc, Subway, Path, Gardiner, Lake, 9 Ft Ceilings, 700+ Sq Ft As Per Building, Hardwood Floors, Floor To Ceiling Windows, ** Must See** Express High Floor Elevators, Indoor Pool, Gym, 24 Hrs Concierge. High Security Building. (id:27476)

Property Highlights

MLS® Number
C12755000
Type
Single Family
Community Name
Waterfront Communities C1
Maintenance Fee
685.22
Ownership Type
Condominium/Strata

Building

Building Type
Apartment
Square Footage
700 - 799 sqft
Bathrooms Total
1
Bedrooms Above Ground
1
Bedrooms Total
2
Amenities
Security/Concierge, Exercise Centre
Exterior Finish
Concrete
Fireplace Present
No
Basement Type
None
Basement Features
Building Heating Type
Forced air
Heating Fuel
Natural gas
Building Cooling Type
Central air conditioning

Location

Learn more about this property
Listing provided by:
RE/MAX CROSSROADS REALTY INC.
MLS® number:
C12755000
Agent:
Betty Li
*Indicates required field
Name is required
Email is required
Please enter a valid phone number (e.g., 416-111-1111).

Street Spotlight - For sale