205 - 185 Alberta Avenue, Toronto, Ontario M6C 0A5

Listed for:
$939,000
2 beds
2 baths
Listed 11 days ago
205 - 185 Alberta Avenue, Toronto, Ontario M6C 0A5

View all 16 photos

About

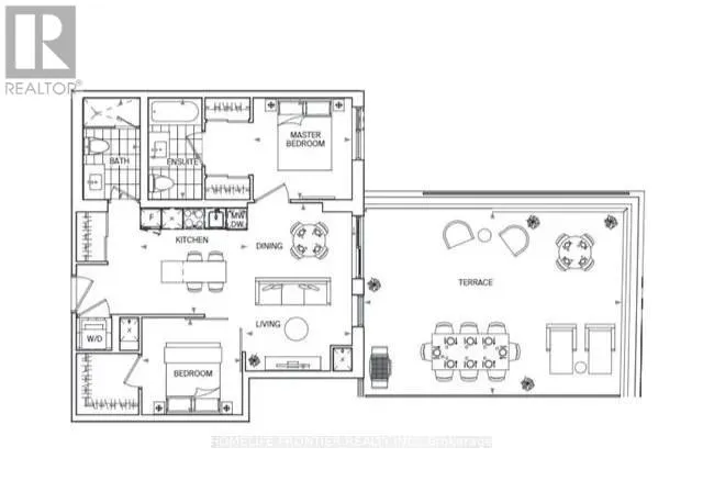
Cross Streets: St. Clair and Alberta Ave. ** Directions: Through Front Lobby. Rare Opportunity To Own The Only Unit In The Building Featuring A Massive 442 Sq. Ft. Private Terrace With Gas BBQ Line And Sweeping City Views. Includes Premium Parking With A Private Storage Room Directly Behind The Spot-An Exceptional And Rare Convenience. Bright And Functional 2-Bedroom, 2-Bath Layout With Upgraded Kitchen, Built-In Appliances, And A Spacious Primary Suite With Ensuite. Boutique Low-Rise Living Just Steps To Wychwood Barns, Cafés, Restaurants, Shops, And TTC. Well-Appointed Amenities Include Party Room, Gym, Wine Lounge, Rooftop Terrace, And Visitor Parking. Wi-Fi Included In Maintenance Fees. Impressive 1,228 Sq. Ft. Of Total Indoor And Outdoor Living Space. (id:27476)

Property Highlights

MLS® Number
C12768918
Type
Single Family
Community Name
Oakwood Village
Maintenance Fee
829.88
Ownership Type
Condominium/Strata
Parking Space Total
1

Building

Square Footage
700 - 799 sqft
Bathrooms Total
2
Bedrooms Above Ground
2
Bedrooms Total
2
Amenities
Storage - Locker
Exterior Finish
Brick
Fireplace Present
No
Basement Type
None
Basement Features
Building Heating Type
Forced air
Heating Fuel
Natural gas
Building Cooling Type
Central air conditioning

Location

Learn more about this property
Listing provided by:
HOMELIFE FRONTIER REALTY INC.
MLS® number:
C12768918
Agent:
Lia Haesook Jeon
*Indicates required field
Name is required
Email is required
Please enter a valid phone number (e.g., 416-111-1111).

Street Spotlight - For sale