103 - 1650 Victoria Park Avenue, Toronto, Ontario M1R 0G8

Listed for:
$2,100
2 beds
2 baths
Listed 4 days ago
Row / Townhouse for rent: 103 - 1650 Victoria Park Avenue, Toronto, Ontario M1R 0G8

View all 17 photos

About

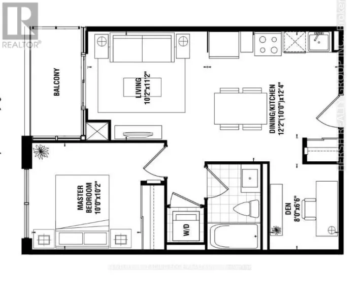
Victoria Park Ave and Draycott Dr Welcome to The Vic Towns - a modern stacked townhouse community in one of Toronto's most convenient neighbourhoods. This bright and spacious 1 bed + den, 2 full bath unit offers a functional open-concept layout with no wasted space. The living and dining areas are perfect for relaxing or entertaining, and the stylish kitchen features full-sized stainless steel appliances and ample storage. The primary bedroom includes a large closet and its own private ensuite. The den is ideal for a home office, guest room, or extra storage. Enjoy the convenience of two full bathrooms - great for couples or roommates. Includes underground parking and a bicycle storage spot. Located just minutes from the new Eglinton Crosstown LRI, ITC, shopping at Eglinton Square, restaurants, schools, and parks. Easy access to the DVP and downtown. Ideal for professionals or small families looking for comfort and accessibility in the city. (id:27476)

Property Highlights

MLS® Number
C12775010
Type
Single Family
Community Name
Victoria Village
Ownership Type
Condominium/Strata
Parking Space Total
1

Building

Building Type
Row / Townhouse
Square Footage
600 - 699 sqft
Bathrooms Total
2
Bedrooms Above Ground
1
Bedrooms Total
2
Amenities
Separate Electricity Meters Park, Place of Worship, Public Transit, Schools
Exterior Finish
Brick
Fireplace Present
No
Basement Type
None
Basement Features
Building Heating Type
Forced air
Heating Fuel
Natural gas
Building Cooling Type
Central air conditioning

Location

Learn more about this property
Listing provided by:
Royal Lepage Real Estate Associates
MLS® number:
C12775010
Agent:
Kate Peterson
*Indicates required field
Name is required
Email is required
Please enter a valid phone number (e.g., 416-111-1111).

Street Spotlight - For rent