716 - 33 Helendale Avenue, Toronto, Ontario M4R 1C5

Listed for:
$2,150
2 beds
1 baths
Listed 3 days ago
Apartment for rent: 716 - 33 Helendale Avenue, Toronto, Ontario M4R 1C5

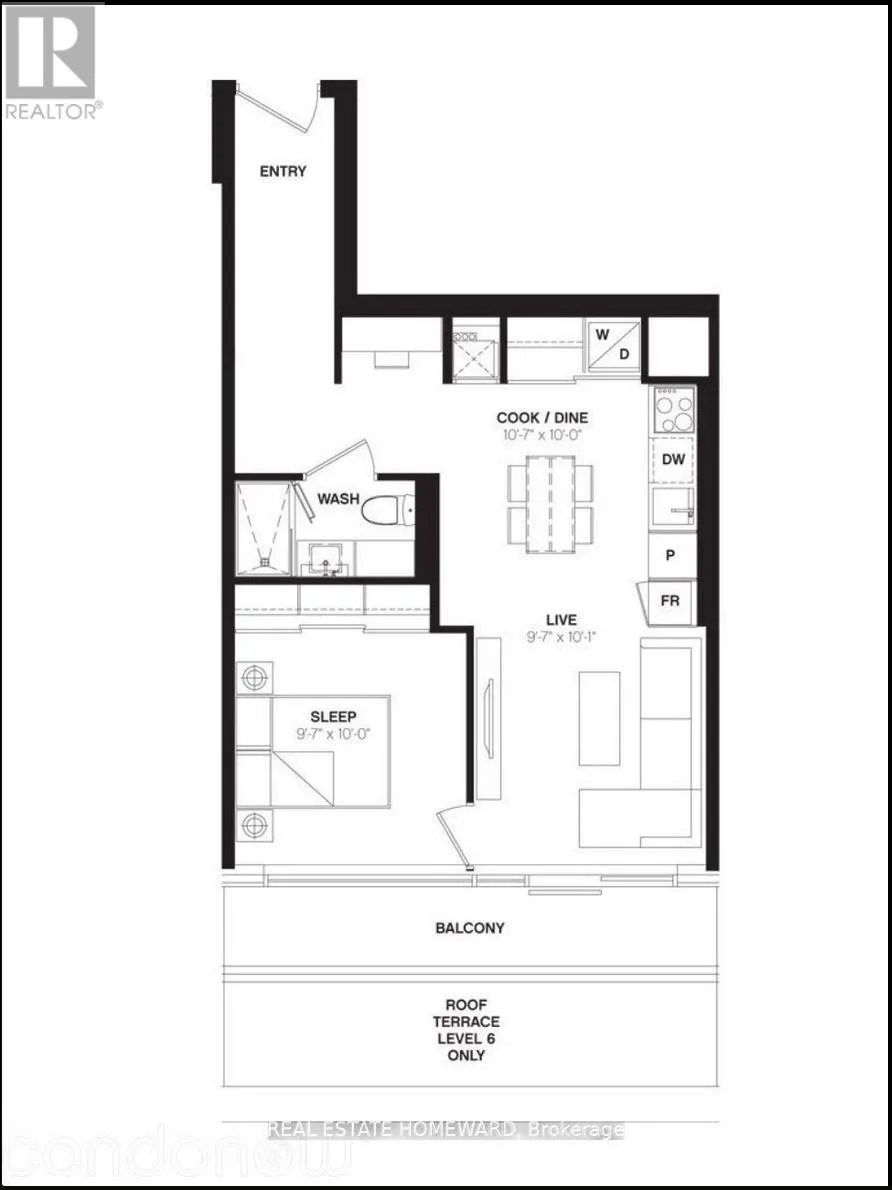
View all 17 photos

About

Yonge & Eglinton Live in the heart of Midtown at Yonge & Eglinton in this beautifully designed 552 sq ft south-facing suite at 33 Helendale Ave. Built in 2021, this modern residence features floor-to-ceiling windows that flood the space with natural light and showcase southern views.Thoughtfully laid out for functionality and comfort, the suite offers contemporary finishes, a bright open-concept living space, and includes a private storage locker for added convenience.Enjoy exceptional building amenities including a fully equipped fitness centre, event kitchen, artist lounge, games area, and an expansive landscaped garden terrace. Just steps to the TTC subway, Eglinton LRT, restaurants, cafés, shopping, and everyday essentials. Boasting near-perfect walk, transit, and bike scores, this is urban living at its finest. (id:27476)

Property Highlights

MLS® Number
C12782034
Type
Single Family
Community Name
Yonge-Eglinton
Ownership Type
Condominium/Strata

Building

Building Type
Apartment
Square Footage
500 - 599 sqft
Bathrooms Total
1
Bedrooms Above Ground
1
Bedrooms Total
2
Amenities
Security/Concierge, Exercise Centre, Party Room, Recreation Centre, Storage - Locker Place of Worship, Public Transit
Exterior Finish
Brick Facing, Concrete
Fireplace Present
No
Basement Type
None
Basement Features
Building Heating Type
Forced air
Heating Fuel
Natural gas
Building Cooling Type
Central air conditioning

Location

Learn more about this property
Listing provided by:
REAL ESTATE HOMEWARD
MLS® number:
C12782034
Agent:
Harris Robert Bundy
*Indicates required field
Name is required
Email is required
Please enter a valid phone number (e.g., 416-111-1111).

Street Spotlight - For rent