612 - 25 Telegram Mews, Toronto, Ontario M5V 3Z1

Listed for:
$2,150
2 beds
1 baths
Listed 3 days ago
Apartment for rent: 612 - 25 Telegram Mews, Toronto, Ontario M5V 3Z1

View all 13 photos

About

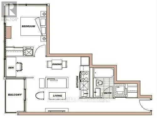
Spadina & Fort York Blvd Welcome home to this 1+1 bedroom unit at Montage, floor-to-ceiling windows frame, breathtaking, sun-drenched views. This rare layout offers a bright, open atmosphere complemented by a full suite of premium amenities, including an indoor pool, hot tub, fully equipped gym, and a rooftop deck with a BBQ area for effortless entertaining. Located in the heart of the city, you are steps away from Toronto's premier destinations like The Well, Waterworks Food Hall, and the Financial District, with the Rogers Centre and Harbourfront just a short stroll away. Convenience is built-in with a Sobeys on the ground floor, 24-hour concierge service, and the TTC right at your doorstep, offering seamless access to the Gardiner and DVP. It's the perfect blend of luxury, style, and urban connectivity. Unit will be freshly repainted before occupancy. (id:27476)

Property Highlights

MLS® Number
C12782052
Type
Single Family
Community Name
Waterfront Communities C1
Ownership Type
Condominium/Strata

Building

Building Type
Apartment
Square Footage
500 - 599 sqft
Bathrooms Total
1
Bedrooms Above Ground
1
Bedrooms Total
2
Amenities
Security/Concierge, Exercise Centre, Party Room Park, Public Transit
Exterior Finish
Concrete
Fireplace Present
No
Basement Type
None
Basement Features
Building Heating Type
Forced air
Heating Fuel
Natural gas
Building Cooling Type
Central air conditioning

Location

Learn more about this property
Listing provided by:
EXP REALTY
MLS® number:
C12782052
Agent:
Eric Wong
*Indicates required field
Name is required
Email is required
Please enter a valid phone number (e.g., 416-111-1111).

Street Spotlight - For rent