340 - 4005 Don Mills Road, Toronto, Ontario M2H 3J9

Listed for:
$645,000
4 beds
3 baths
Listed 10 days ago
Row / Townhouse for rent: 340 - 4005 Don Mills Road, Toronto, Ontario M2H 3J9

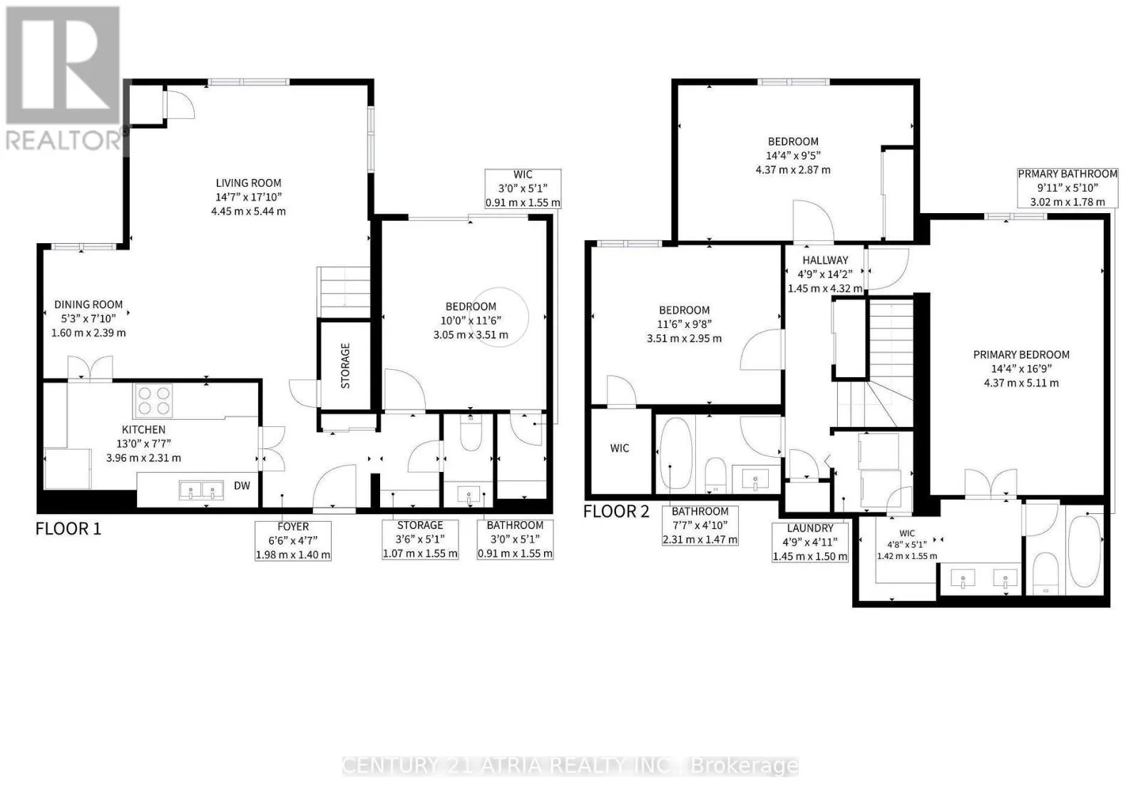
View all 13 photos

About

Cross Streets: DON MILLS RD & STEELES AVE E. ** Directions: SOUTH WEST CORNER OF DON MILLS & STEELES. *** Don't miss this "once-a-year" type of chance! *** Experience a rare opportunity to own one of the largest units in the building *** This expansive 1,400+ sq. ft. model features 4 spacious bedrooms and 2.5 washrooms, perfectly suited for growing or multi-generational families *** South exposure, great sunlight in the afternoons *** Enjoy the convenience of all-inclusive living where maintenance fees cover your essential utilities *** Located in a premier school district, your children can attend top-ranked institutions including Arbor Glen Public School and A.Y. Jackson Secondary *** Commuting is a breeze with TTC at your doorstep and quick access to Highways 401, 404/DVP, and 407 *** Walk to Shops, Restaurants, Banks, local parks, community centers, etc *** Newer dishwaser, Newer Oven, Newer AC unit, pictures are from before tenanted *** (id:27476)

Property Highlights

MLS® Number
C12782628
Type
Single Family
Community Name
Hillcrest Village
Maintenance Fee
1156.17
Ownership Type
Condominium/Strata
Parking Space Total
1

Building

Building Type
Row / Townhouse
Storeys
2.00
Square Footage
1400 - 1599 sqft
Bathrooms Total
3
Bedrooms Above Ground
4
Bedrooms Total
4
Amenities
Storage - Locker
Exterior Finish
Brick
Fireplace Present
No
Basement Type
None
Basement Features
Building Heating Type
Forced air
Heating Fuel
Electric
Building Cooling Type
Central air conditioning

Location

Learn more about this property
Listing provided by:
CENTURY 21 ATRIA REALTY INC.
MLS® number:
C12782628
Agent:
Chunlie Ji
*Indicates required field
Name is required
Email is required
Please enter a valid phone number (e.g., 416-111-1111).

Street Spotlight - For sale