1705w - 36 Lisgar Street, Toronto, Ontario M6J 0C7

Listed for:
$2,600
2 beds
2 baths
Listed 48 days ago
Apartment for rent: 1705w - 36 Lisgar Street, Toronto, Ontario M6J 0C7

View all 8 photos

About

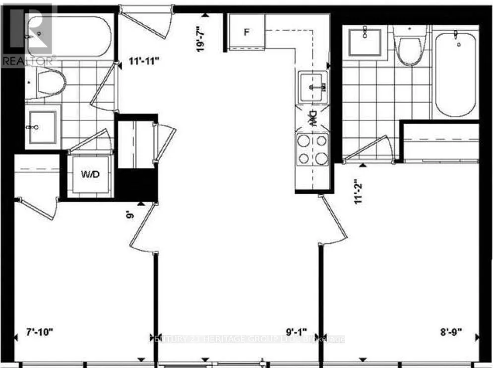
Dovercourt & Queen St W Gorgeous 2 Bedroom Suite With Two Full Baths. A Functional Layout In The Hear Of Vibrant Queen West. Modern Kitchen Features S/S Appliances. Ceramic B/Splash & Granite Counter Tops. Bright & Open Concept Living/ Dining Area Features A Juliette Balcony & Laminate Floors. Two Spacious Bedrooms. Master Features A 4Pc Ensuite. Walk To Shops, Galleries, Restaurants, Bars, Parks, Shopping, Transit And Much More! (id:27476)

Property Highlights

MLS® Number
C12784580
Type
Single Family
Community Name
Little Portugal
Ownership Type
Condominium/Strata
Parking Space Total
1

Building

Building Type
Apartment
Square Footage
500 - 599 sqft
Bathrooms Total
2
Bedrooms Above Ground
2
Bedrooms Total
2
Amenities
Security/Concierge, Exercise Centre, Recreation Centre, Party Room, Visitor Parking, Storage - Locker Park, Public Transit
Exterior Finish
Brick, Concrete
Fireplace Present
No
Basement Type
None
Basement Features
Building Heating Type
Forced air
Heating Fuel
Natural gas
Building Cooling Type
Central air conditioning

Location

Learn more about this property
Listing provided by:
CENTURY 21 HERITAGE GROUP LTD.
MLS® number:
C12784580
Agent:
Amin Nikdel
*Indicates required field
Name is required
Email is required
Please enter a valid phone number (e.g., 416-111-1111).

Street Spotlight - For rent