1406 - 36 Park Lawn Road, Toronto, Ontario M8V 0E5

Listed for:
$2,250
2 beds
1 baths
Listed 3 days ago
Apartment for rent: 1406 - 36 Park Lawn Road, Toronto, Ontario M8V 0E5

View all 10 photos

About

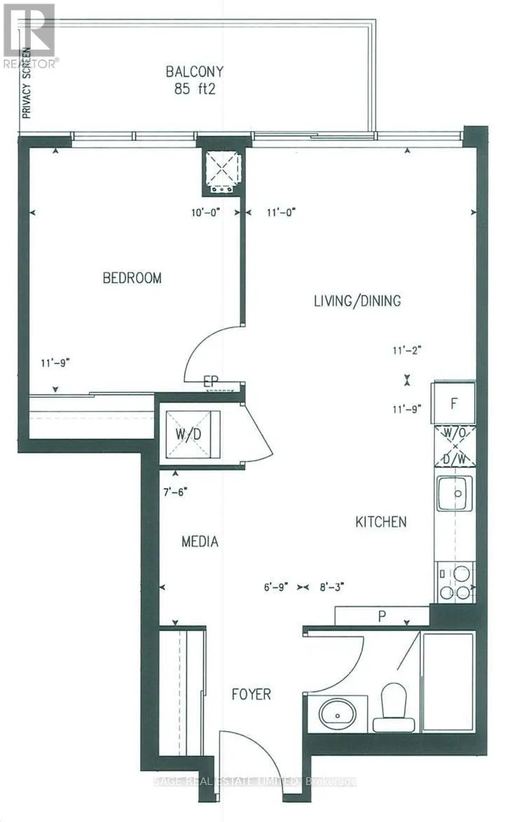
LAKE SHORE PARK LAWN Welcome to Suite 1406 at 36 Park Lawn Rd - a bright, well-laid-out 1 bedroom + den in the heart of Humber Bay Shores. The space is functional and easy to live in, with floor-to-ceiling windows and an open living/dining area that doesn't feel cramped. The den is actually usable - perfect for a proper home office or guest space. The kitchen is modern and clean with stone counters, full-sized appliances, and plenty of storage, flowing naturally into the main living area.Step outside and you're right by the Humber Bay Waterfront Trail, marinas, parks, and Lake Ontario. Morning walks, bike rides, coffee runs, patio dinners - it's all here. Metro is literally downstairs, so groceries take five minutes.For commuters, you're right at the QEW and Gardiner - easy east into downtown or west toward Mississauga and beyond. It's the kind of location that just makes daily life simple. (id:27476)

Property Highlights

MLS® Number
W12785430
Type
Single Family
Community Name
Mimico
Ownership Type
Condominium/Strata
Parking Space Total
1

Building

Building Type
Apartment
Square Footage
600 - 699 sqft
Bathrooms Total
1
Bedrooms Above Ground
1
Bedrooms Total
2
Amenities
Storage - Locker
Exterior Finish
Concrete
Fireplace Present
No
Basement Type
None
Basement Features
Building Heating Type
Forced air
Heating Fuel
Natural gas
Building Cooling Type
Central air conditioning

Location

Learn more about this property
Listing provided by:
SAGE REAL ESTATE LIMITED
MLS® number:
W12785430
Agent:
Alexander Taras Verbitsky
*Indicates required field
Name is required
Email is required
Please enter a valid phone number (e.g., 416-111-1111).

Street Spotlight - For rent