1503s - 110 Broadway Avenue, Toronto, Ontario M4P 1V7

Listed for:
$2,100
1 beds
1 baths
Listed 2 days ago
Apartment for rent: 1503s - 110 Broadway Avenue, Toronto, Ontario M4P 1V7

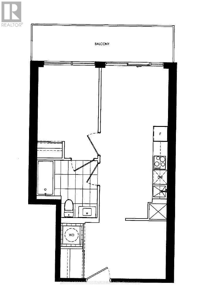
View all 16 photos

About

Mount Pleasant & Eglinton Ave E NEVER BEEN LIVED-IN Bright and spacious 1+Den suite offering 536 sq ft of thoughtfully designed interior space plus a 110 sq ft private balcony. The versatile den is generously sized and can easily function as a second bedroom, home office, or flex space - ideal for professionals seeking additional room to work or to host.This freshly painted unit features numerous builder upgrades. Blinds will be installed prior to the Tenant's occupancy for added privacy.Residents enjoy access to premium building amenities, including a fully equipped gym, indoor/outdoor pool, media room, recreation room, and children's play area.An excellent opportunity for a qualified tenant seeking quality finishes, modern amenities, and flexible living space in a well-managed building.This address places you in the heart of Midtown Toronto's vibrant Yonge & Eglinton corridor - one of the city's most connected and amenity-rich neighbourhoods.Just steps to the Eglinton Subway Station and new Crosstown LRT, commuting is seamless with directaccess to downtown and across the city. Surrounded by cafés, fitness studios, grocery stores, restaurants,and boutique shopping, everything you need is within walking distance. Green spaces including Eglinton Park and local trails, while being minutes to major highways. This is urban living with convenience,connectivity, and lifestyle at its core. (id:27476)

Property Highlights

MLS® Number
C12786728
Type
Single Family
Community Name
Mount Pleasant West
Ownership Type
Condominium/Strata

Building

Building Type
Apartment
Square Footage
600 - 699 sqft
Bathrooms Total
1
Bedrooms Above Ground
1
Bedrooms Total
1
Amenities
Security/Concierge, Exercise Centre Public Transit
Exterior Finish
Concrete
Fireplace Present
No
Basement Type
None
Basement Features
Building Heating Type
Forced air
Heating Fuel
Natural gas
Building Cooling Type
Central air conditioning

Location

Learn more about this property
Listing provided by:
ROYAL LEPAGE SIGNATURE REALTY
MLS® number:
C12786728
Agent:
Devany Zito
*Indicates required field
Name is required
Email is required
Please enter a valid phone number (e.g., 416-111-1111).

Street Spotlight - For rent