Main - 118 Sackville Street, Toronto, Ontario M5A 3E7

Listed for:
$2,750
2 beds
1 baths
Listed 2 days ago
Row / Townhouse for rent: Main - 118 Sackville Street, Toronto, Ontario M5A 3E7

View all 5 photos

About

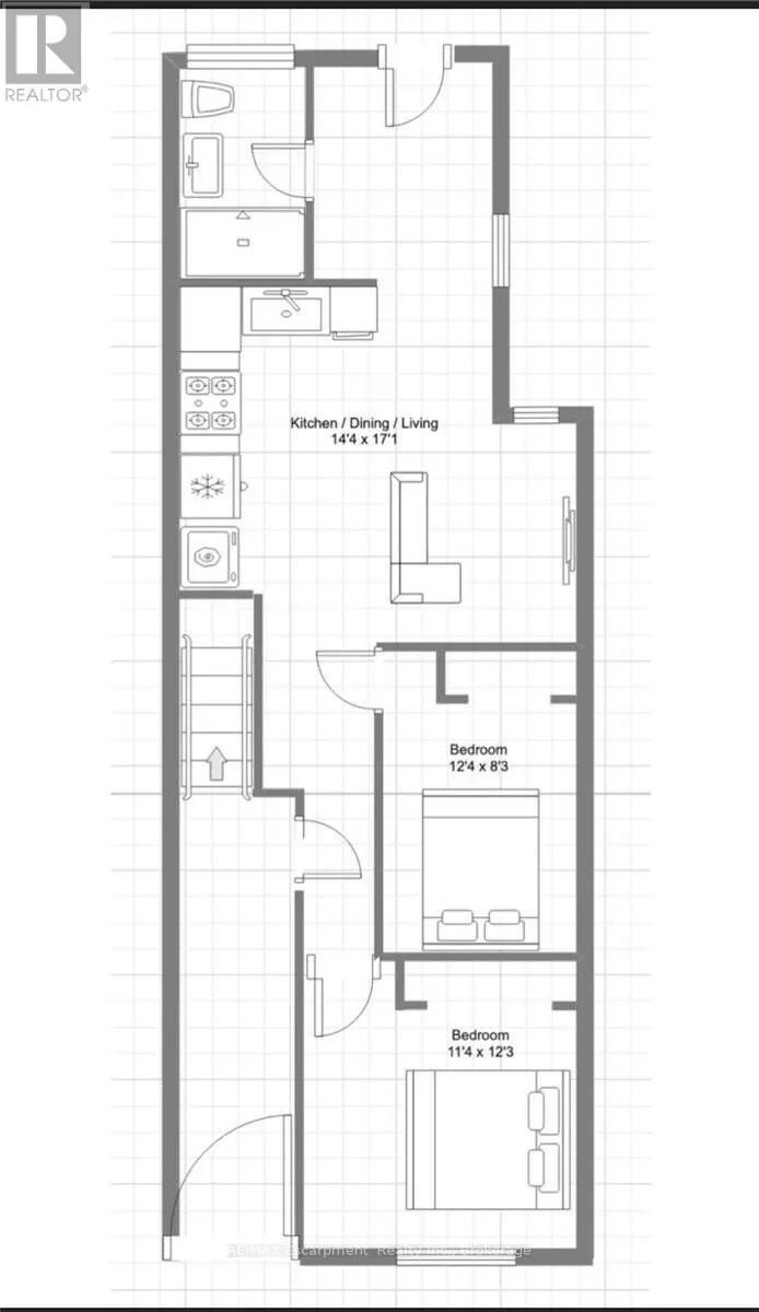
Cross Streets: SHUTER & SACKVILLE. ** Directions: -. Available April 1, 2026. 876 Sqft - 1+1 Bedroom main floor apartment. 1 x 3 - Piece washroom *Ensuite Laundry. Recently renovated unit! Part of a legal 4-unit semi-detached house that has recently been completely renovated with new finishes and appliances. *Central heat, A/C and parking included in rent. Tenant is responsible for hydro and lawn maintenance. Enjoy a private fenced yard, with a shared common space. (id:27476)

Property Highlights

MLS® Number
C12788824
Type
Single Family
Community Name
Regent Park
Ownership Type
Freehold
Parking Space Total
1

Building

Building Type
Row / Townhouse
Square Footage
700 - 1100 sqft
Bathrooms Total
1
Bedrooms Above Ground
1
Bedrooms Total
2
Amenities
Park, Public Transit
Exterior Finish
Brick
Fireplace Present
No
Basement Type
None
Basement Features
Building Heating Type
Forced air
Heating Fuel
Natural gas
Building Cooling Type
Central air conditioning

Utilities

Water
Municipal water
Utility Sewer
Sanitary sewer

Room Layout

Kitchen
Main level
4.38 m x 5.21 m
Bedroom
Main level
3.77 m x 2.52 m
Bedroom
Main level
3.47 m x 3.74 m
Bathroom
Main level
Measurements not available

Location

Learn more about this property
Listing provided by:
RE/MAX Escarpment Realty Inc., Brokerage
MLS® number:
C12788824
Agent:
Julie Bezusko
*Indicates required field
Name is required
Email is required
Please enter a valid phone number (e.g., 416-111-1111).

Street Spotlight - For rent