Ph3002 - 70 Princess Street, Toronto, Ontario M5A 0X6

Listed for:
$779,900
3 beds
2 baths
Listed 13 days ago
Apartment for rent: Ph3002 - 70 Princess Street, Toronto, Ontario M5A 0X6

View all 4 photos

About

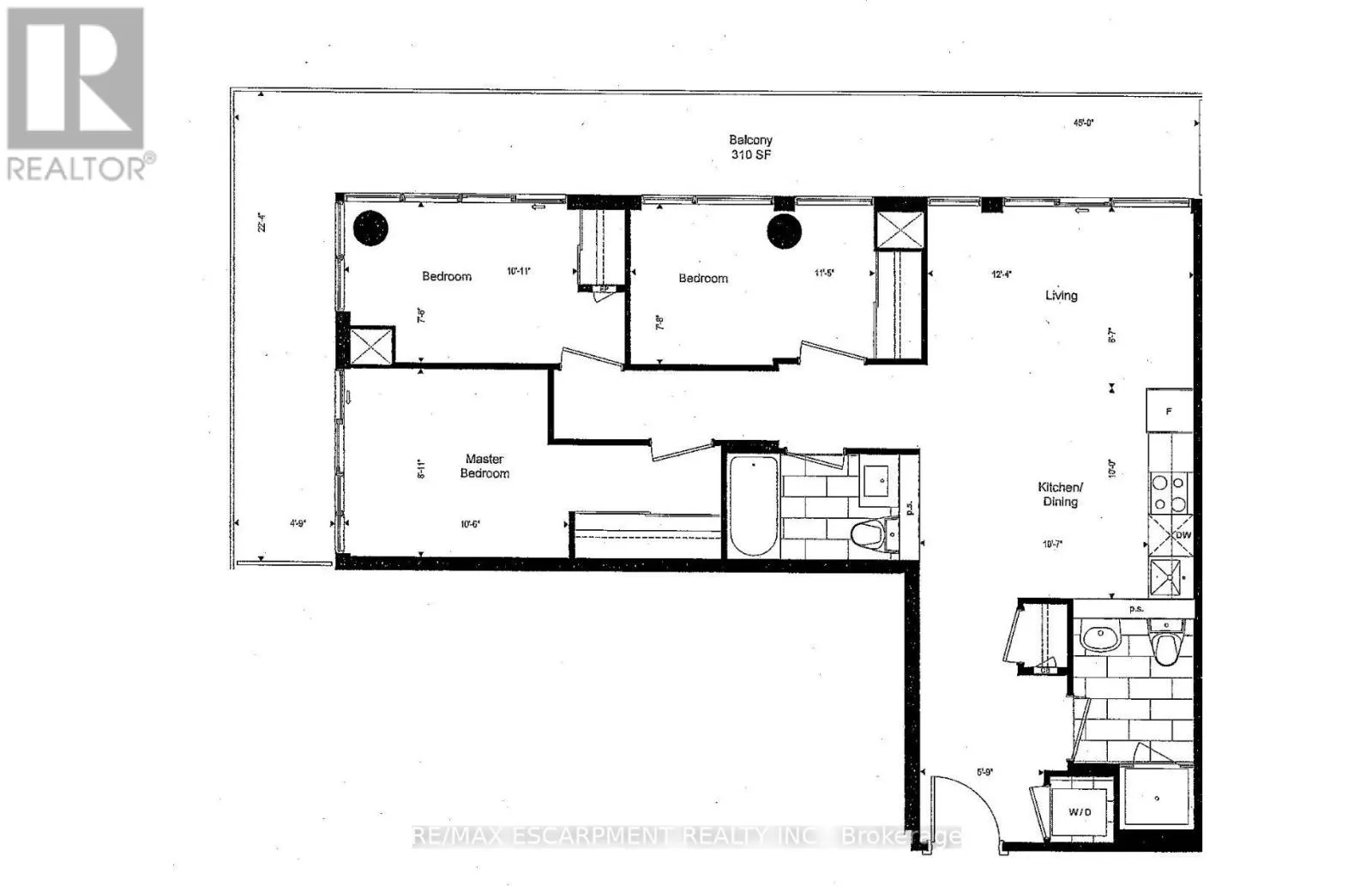
Cross Streets: The Esplanade. ** Directions: Google Maps. Discover Time & Space By Pemberton! Located In The Heart Of Downtown Toronto At Princess St & Front St E, Surrounded By The Distillery District, St. Lawrence Market, TTC Access, Financial District & The Waterfront - A High-Demand Rental Location. Enjoy An Impressive Collection Of Amenities Including An Infinity-Style Pool, Rooftop Cabanas, Outdoor BBQ Spaces, Fitness Centre, Yoga Studio, Games Lounge, Party Room & More. Rare 3 Bedroom, 2 Bathroom Penthouse Residence Offering 910 Sq Ft Of Well-Planned Living Space Plus Balcony. Sun-Filled With Northeast Exposure. Parking And Locker Included. An Excellent Opportunity For Investors Or End-Users Seeking Long-Term Value In A Premier Downtown Community. (id:27476)

Property Highlights

MLS® Number
C12795952
Type
Single Family
Community Name
Waterfront Communities C8
Maintenance Fee
836.15
Ownership Type
Condominium/Strata
Parking Space Total
1

Building

Building Type
Apartment
Square Footage
900 - 999 sqft
Bathrooms Total
2
Bedrooms Above Ground
3
Bedrooms Total
3
Amenities
Security/Concierge, Exercise Centre, Recreation Centre, Party Room, Storage - Locker Place of Worship, Hospital, Schools, Public Transit
Exterior Finish
Concrete
Fireplace Present
No
Basement Type
N/A
Basement Features
Apartment in basement
Building Heating Type
Forced air
Heating Fuel
Natural gas
Building Cooling Type
Central air conditioning

Location

Learn more about this property
Listing provided by:
RE/MAX ESCARPMENT REALTY INC.
MLS® number:
C12795952
Agent:
Rhiannon Cook
*Indicates required field
Name is required
Email is required
Please enter a valid phone number (e.g., 416-111-1111).

Street Spotlight - For sale