40 Dominion Road, Toronto, Ontario M8W 1J7

Listed for:
$1,929,000
8 beds
4 baths
Listed 57 days ago
Other for rent: 40 Dominion Road, Toronto, Ontario M8W 1J7

View all 27 photos

About

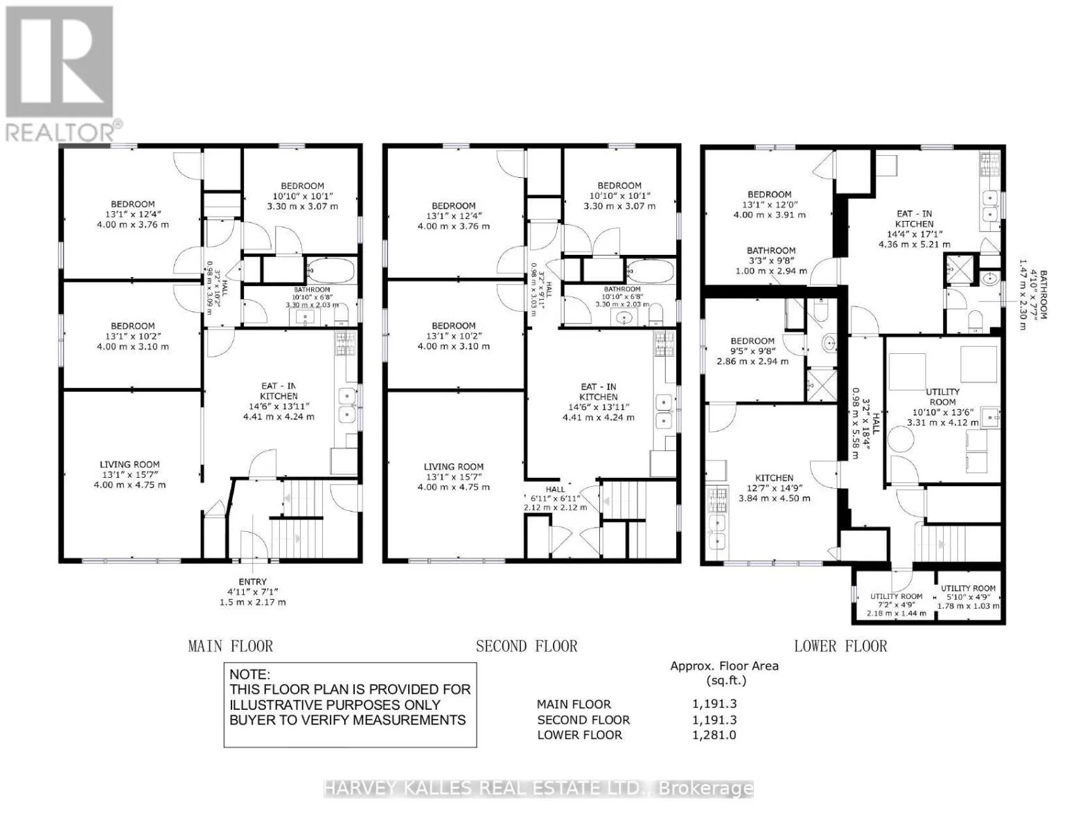
Lakeshore Blvd/35th St Welcome to 40 Dominion Rd, an Incredible Rare Investment Opportunity Located South Of Lake Shore Blvd in the Heart of Long Branch. Steps away from the Long Branch GO Station, Marie Curtis Park, Trendy Shops and Major Highways with Direct access from Browns Line to Sherway Gardens, 427 and QEW/Gardiner. The Property Sits on a Very Large 45 x 150 ft Deep exterior Lot with an incredible Detached Double Garage complete with Electricity and Expansion Potential. This legal Triplex has 4 rentable units, including 2 very large 3-bedroom apartments on the 1st and 2nd floor, with an additional 2 lower units, each with 1 Bedroom and a large Kitchen/Living area. The Basement is complete with coin laundry and all windows are above grade. The unit has an excellent financial profile and a fantastic net operating income. If you are looking for a great return on investment with additional future upside Potential, Then Look no further, Your dream investment opportunity is here! **EXTRAS** This Property Also Qualifies For A 1290 sq ft Garden Suite Which Would Increase the Income and Value To The Owner. Property has a 4.5% cap rate. (id:27476)

Property Highlights

MLS® Number
W12796934
Type
Multi-family
Community Name
Long Branch
Land Size
45 x 150 FT
Parking Space Total
7

Building

Building Type
Other
Storeys
2.00
Square Footage
2000 - 2500 sqft
Bathrooms Total
4
Bedrooms Above Ground
6
Bedrooms Total
8
Exterior Finish
Brick
Fireplace Present
No
Basement Type
N/A, N/A (Finished)
Basement Features
Apartment in basement
Building Heating Type
Forced air
Heating Fuel
Natural gas
Building Cooling Type
None

Utilities

Water
Municipal water
Utility Sewer
Sanitary sewer

Room Layout

Kitchen
Main level
4.41 m x 4.24 m
Living room
Main level
4 m x 4.75 m
Bedroom
Main level
4 m x 3.76 m
Bedroom 2
Main level
4 m x 3.1 m
Bedroom 3
Main level
3.3 m x 3.07 m

Location

Learn more about this property
Listing provided by:
HARVEY KALLES REAL ESTATE LTD.
MLS® number:
W12796934
Agent:
Peter Powers
*Indicates required field
Name is required
Email is required
Please enter a valid phone number (e.g., 416-111-1111).