811 - 11 Superior Avenue, Toronto, Ontario M8V 0A7

Listed for:
$599,800
1 beds
1 baths
Listed 57 days ago
Apartment for rent: 811 - 11 Superior Avenue, Toronto, Ontario M8V 0A7

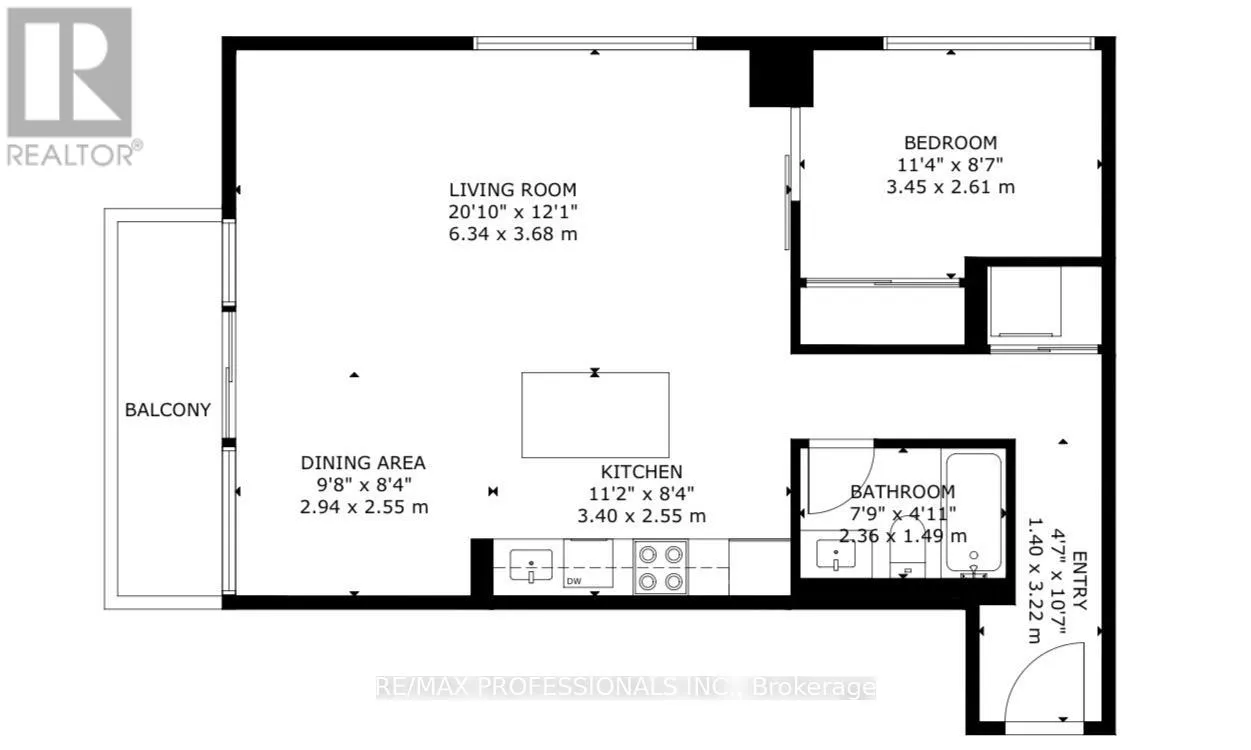
View all 40 photos

About

Lake Shore Blvd. W and Superior Ave Stunning and unique! Large, airy and bright! This 1 bedroom, corner unit is 744 square feet (+balcony!) and features a completely open concept living space with stunning views. Working from home never felt this comfortable. An artist's haven! This unit is really nothing like the rest (*one of only 2 units in the building*). Upgrades throughout including luxury laminate flooring, large kitchen with quartz counters and oversize island, large windows with custom blinds, large balcony and includes owned parking and locker. This unit is west and north facing - with private exposure. Enjoy stunning sunsets and amazing views of the lake, the Lake Shore and the neighbourhood. Nestled right on the Lake Shore, but conveniently away from the chaos, discover the charm and character of Old Mimico. Built in 2015, the desirable quiet, low-rise boutique style building is a pleasure to call home. Building great amenities include rooftop terrace, gym, party room, concierge and visitor parking. Steps from the lake, Superior Park, transit, shops, restaurants, bars-every amenity imaginable with convenient grocery across the street. TTC at your door step and a short walk to Mimico GO Station. Easy Access to the Gardiner Expressway/ QEW. Explore miles of waterfront walking and cycling trails and much more! (id:27476)

Property Highlights

MLS® Number
W12798638
Type
Single Family
Community Name
Mimico
Maintenance Fee
789.13
Ownership Type
Condominium/Strata
Parking Space Total
1

Building

Building Type
Apartment
Square Footage
700 - 799 sqft
Bathrooms Total
1
Bedrooms Above Ground
1
Bedrooms Total
1
Amenities
Storage - Locker
Exterior Finish
Brick, Concrete
Fireplace Present
No
Basement Type
None
Basement Features
Building Heating Type
Forced air
Heating Fuel
Natural gas
Building Cooling Type
Central air conditioning

Location

Learn more about this property
Listing provided by:
RE/MAX PROFESSIONALS INC.
MLS® number:
W12798638
Agent:
Dan Saracino
*Indicates required field
Name is required
Email is required
Please enter a valid phone number (e.g., 416-111-1111).