1606 - 35 Merton Street, Toronto, Ontario M4S 3G4

Listed for:
$1,285,000
3 beds
2 baths
Listed 41 days ago
Apartment for rent: 1606 - 35 Merton Street, Toronto, Ontario M4S 3G4

View all 27 photos

About

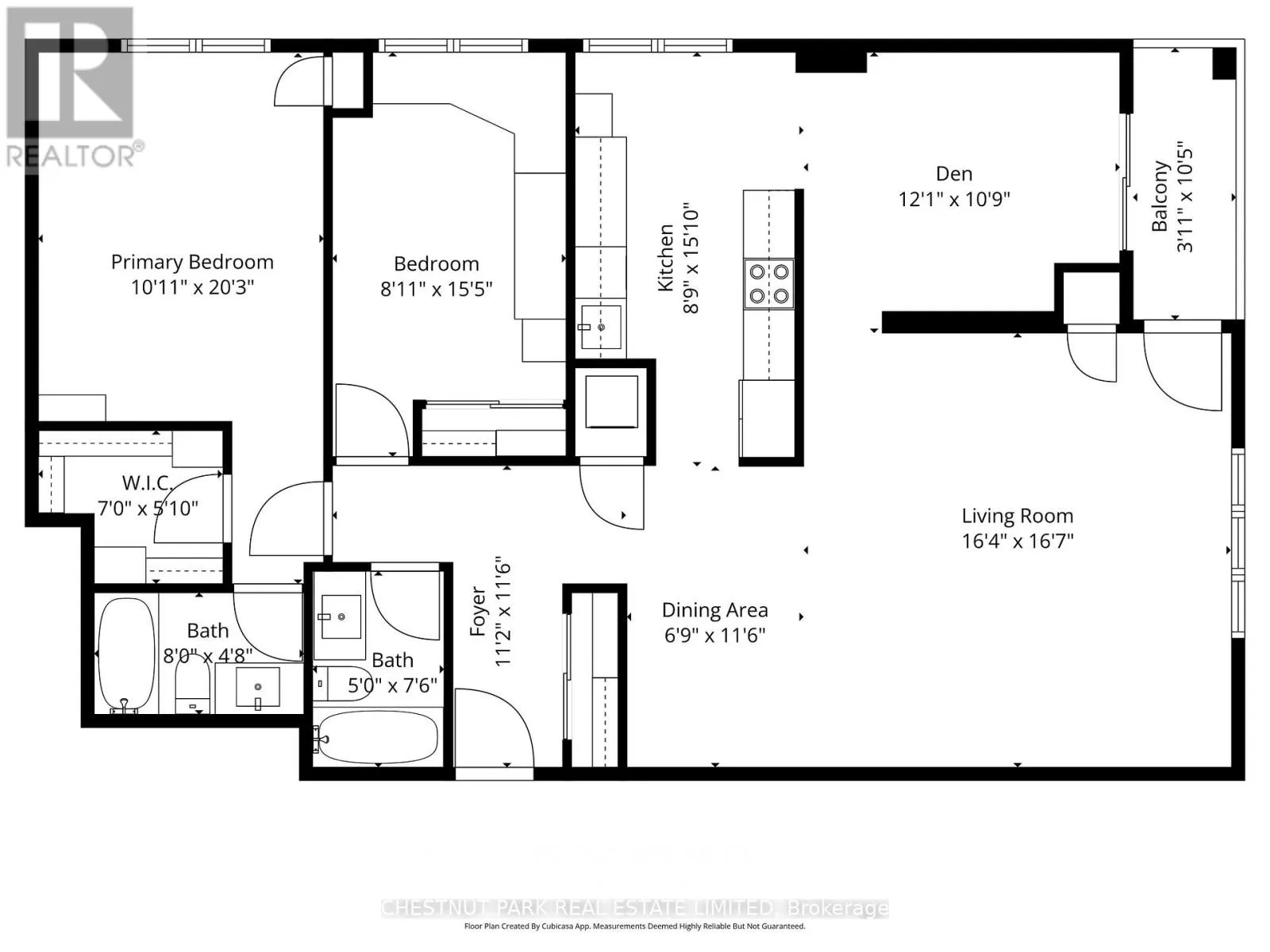
Cross Streets: Merton St and Yonge St. ** Directions: Merton St. Suite 1606 is a bright and spacious south east corner residence with over 1200 square feet flooded with natural light and features incredible, unobstructed south views over the Toronto skyline and Belt Line Park. Enter into a large foyer with an impressive closet with space for all seasons attire which takes you through to the expansive open concept living and dining area which are ideal for entertaining. The updated east facing kitchen includes stainless steel appliances, granite counter tops, and a cozy breakfast bar. The den off of the kitchen walks out to the south facing balcony and is perfect for enjoying quiet moments. The Bedrooms are generously proportioned and the primary features large east facing window, a walk in closet, and four piece ensuite bath. The buildings location is close to a plethora of great mid-town Toronto dining and shopping experiences. Hiking and cycling enthusiasts will appreciate the proximity to an expansive trail system and green spaces, and for commuters the Davisville subway stop is just around the corner. The monthly maintenance fees are incredibly inclusive and cover the cost of heat, hydro, water, common elements, Bell Better Package TV 300 channels, Bell Fibre Internet 1.5G High Speed, parking, and the building insurance. 35 Merton St is a building cherished by its owners and well cared for by all. (id:27476)

Property Highlights

MLS® Number
C12803884
Type
Single Family
Community Name
Mount Pleasant West
Maintenance Fee
1658.88
Ownership Type
Condominium/Strata
Parking Space Total
1

Building

Building Type
Apartment
Square Footage
1200 - 1399 sqft
Bathrooms Total
2
Bedrooms Above Ground
2
Bedrooms Total
3
Amenities
Fireplace(s), Storage - Locker, Security/Concierge Park, Public Transit
Exterior Finish
Concrete
Fireplace Present
Yes
Basement Type
None
Basement Features
Building Heating Type
Forced air
Heating Fuel
Electric
Building Cooling Type
Central air conditioning

Location

Learn more about this property
Listing provided by:
CHESTNUT PARK REAL ESTATE LIMITED
MLS® number:
C12803884
Agent:
Tatiana Kay Hermanns
*Indicates required field
Name is required
Email is required
Please enter a valid phone number (e.g., 416-111-1111).

Street Spotlight - For sale