82 Lanark Avenue, Toronto, Ontario M6E 2G4

Listed for:
$1,699,000
5 beds
3 baths
Listed 40 days ago
Triplex for rent: 82 Lanark Avenue, Toronto, Ontario M6E 2G4

View all 6 photos

About

Cross Streets: Eglinton / Oakwood. ** Directions: South of Eglinton Ave. W just off of Oakwood Ave. Great investment opportunity in a prime transit-oriented location along the new LRT line! Live in one unit and rent out the other two, or enjoy all three levels as a spacious home for the entire family. This well-maintained triplex features 3 separately metered units, parking, and excellent income potential. Conveniently located just steps to Eglinton West Station on the University line, and minutes to Allen Road, Highway 401, and downtown Toronto. Enjoy unbeatable convenience with shopping, restaurants, schools, and everyday amenities all within walking distance - an ideal property for investors, multigenerational families, or savvy homeowners looking to offset their mortgage with rental income. (id:27476)

Property Highlights

MLS® Number
C12807482
Type
Multi-family
Community Name
Oakwood Village
Land Size
25 x 98 FT
Parking Space Total
3

Building

Building Type
Triplex
Storeys
2.00
Square Footage
1500 - 2000 sqft
Bathrooms Total
3
Bedrooms Above Ground
4
Bedrooms Total
5
Exterior Finish
Brick
Fireplace Present
No
Basement Type
N/A, N/A
Basement Features
Apartment in basement, Separate entrance
Building Heating Type
Heating Fuel
Building Cooling Type
None

Utilities

Water
Municipal water
Utility Sewer
Sanitary sewer

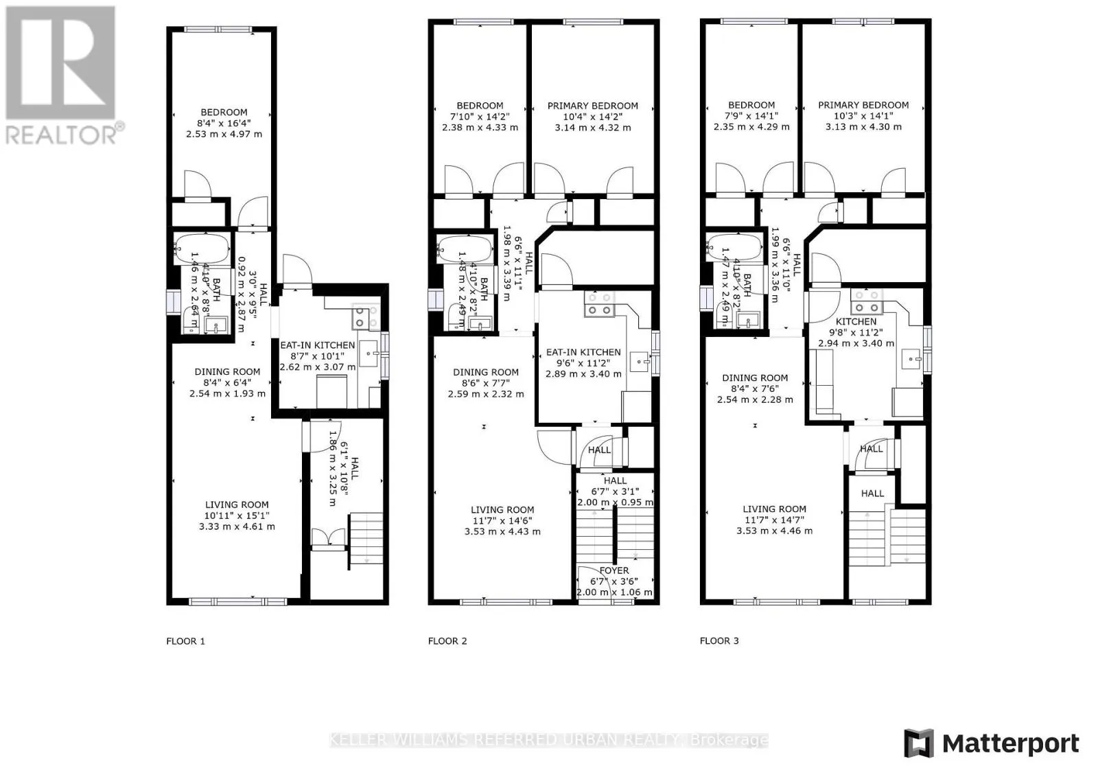
Room Layout

Living room
Second level
3.53 m x 4.43 m
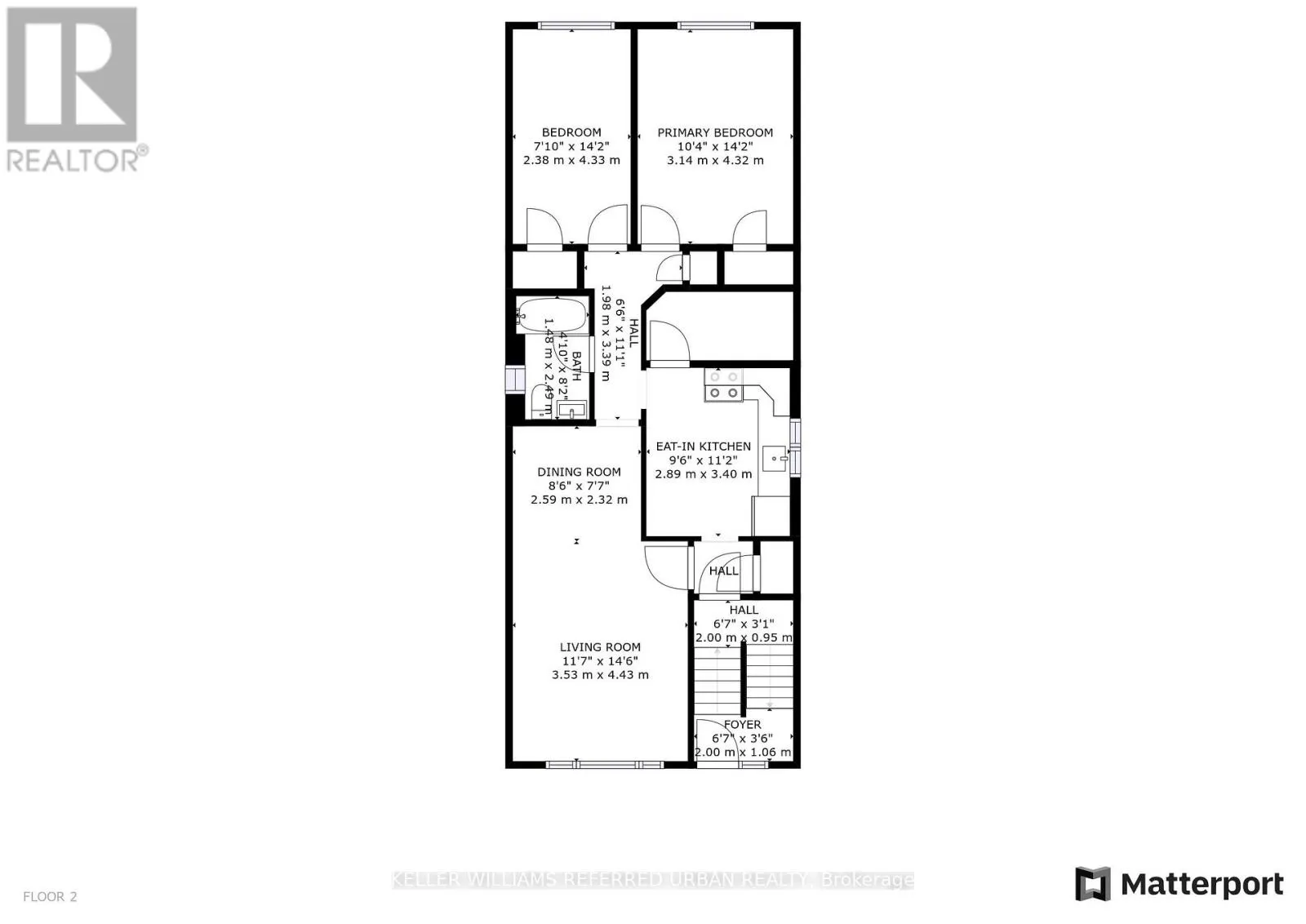
Dining room
Second level
3.53 m x 4.43 m
Kitchen
Second level
2.89 m x 3.4 m
Bedroom
Second level
3.14 m x 4.32 m
Bedroom 2
Second level
2.38 m x 4.33 m
Living room
Third level
3.53 m x 4.46 m
Kitchen
Third level
2.94 m x 3.4 m
Bedroom
Third level
3.13 m x 4.3 m
Bedroom 2
Third level
2.35 m x 4.29 m
Living room
Lower level
3.33 m x 4.61 m
Kitchen
Lower level
2.62 m x 3.07 m
Bedroom
Lower level
2.53 m x 4.97 m

Location

Learn more about this property
Listing provided by:
KELLER WILLIAMS REFERRED URBAN REALTY
MLS® number:
C12807482
Agent:
Arthur Sercan
*Indicates required field
Name is required
Email is required
Please enter a valid phone number (e.g., 416-111-1111).