1916 - 180 Front Street E, Toronto, Ontario M5K 0A9

Listed for:
$2,000
1 beds
1 baths
Listed 5 days ago
Apartment for rent: 1916 - 180 Front Street E, Toronto, Ontario M5K 0A9

View all 23 photos

About

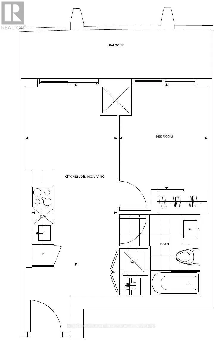
Cross Streets: Front St E & Sherbourne St. ** Directions: North East Corner of Front St E & Sherbourne St. Welcome to this brand new 1-bedroom at The Whitfield. Featuring large floor-to-ceiling windows, built-in S/S appliances, a large walk-out balcony, a functional layout, and thoughtfully design throughout. This suite offers stylish downtown living in one of Toronto's most vibrant neighbourhoods. Walk to cafes, restaurants, parks, and transit with ease. Enjoy modern finishes, sleek appliances, and a bright, open-concept living area. Be the first to live in this pristine unit, ideally located at 180 Front St E, steps to transit, St. Lawrence Market, the Distillery District, and the Financial Core. Perfect for professionals seeking comfort and convenience. (id:27476)

Property Highlights

MLS® Number
C12819754
Type
Single Family
Community Name
Moss Park
Ownership Type
Condominium/Strata

Building

Building Type
Apartment
Square Footage
0 - 499 sqft
Bathrooms Total
1
Bedrooms Above Ground
1
Bedrooms Total
1
Exterior Finish
Concrete
Fireplace Present
No
Basement Type
None
Basement Features
Building Heating Type
Forced air
Heating Fuel
Natural gas
Building Cooling Type
Central air conditioning

Location

Learn more about this property
Listing provided by:
RE/MAX REALTRON JIM MO REALTY
MLS® number:
C12819754
Agent:
Jeffrey Sun
*Indicates required field
Name is required
Email is required
Please enter a valid phone number (e.g., 416-111-1111).

Street Spotlight - For rent