1238 Kingston Road, Toronto, Ontario M1N 1P3

Listed for:
$22
0 beds
0 baths
Listed 34 days ago
1238 Kingston Road, Toronto, Ontario M1N 1P3

View all 26 photos

About

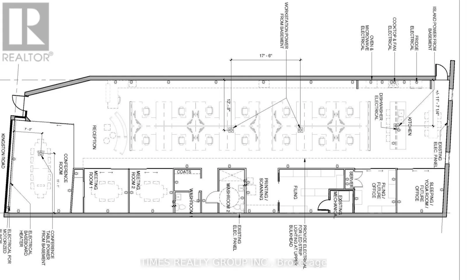
Kingston/Fallingbrook A clean, modern 3,500 sq ft commercial space offering a highly functional layout with a balance of open-concept areas and private rooms. The space is designed to accommodate a range of uses with minimal modification. Large open workspace suitable for office, showroom, school, fitness floor. Multiple enclosed rooms ideal for offices, treatment rooms, or meeting spaces. Glass boardroom / private offices allowing light to flow throughout. Dedicated reception / lounge area at entry. Kitchen / staff area. Two washrooms. High 14 foot ceilings and Extensive glazing providing strong natural light. Suit Professional office (legal, real estate, creative, tech), Showroom / studio with client-facing presentation areas, Spa / wellness clinic with multiple treatment rooms already defined, Fitness / movement studio (yoga, pilates, functional training), Hybrid workspace combining private consult rooms and open collaboration. Located on Kingston Road in the Upper Beaches, the space benefits from strong street presence and accessibility, making it suitable for both client-facing and operational businesses. Max 5 year lease. Demolition clause. Some photos are virtually staged. (id:27476)

Property Highlights

MLS® Number
E12825472
Type
Retail
Community Name
Birchcliffe-Cliffside
Land Size
Unit=30 x 116 FT

Building

Square Footage
3500 sqft
Fireplace Present
No
Basement Type
Basement Features
Building Heating Type
Forced air
Heating Fuel
Natural gas
Building Cooling Type
Fully air conditioned

Utilities

Water
Municipal water

Location

Learn more about this property
Listing provided by:
TIMES REALTY GROUP INC.
MLS® number:
E12825472
Agent:
Karen Dubin
*Indicates required field
Name is required
Email is required
Please enter a valid phone number (e.g., 416-111-1111).