175 Lake Shore Drive, Toronto, Ontario M8V 2A1

Listed for:
$2,499,000
5 beds
6 baths
Listed 48 days ago
House for rent: 175 Lake Shore Drive, Toronto, Ontario M8V 2A1

View all 13 photos

About

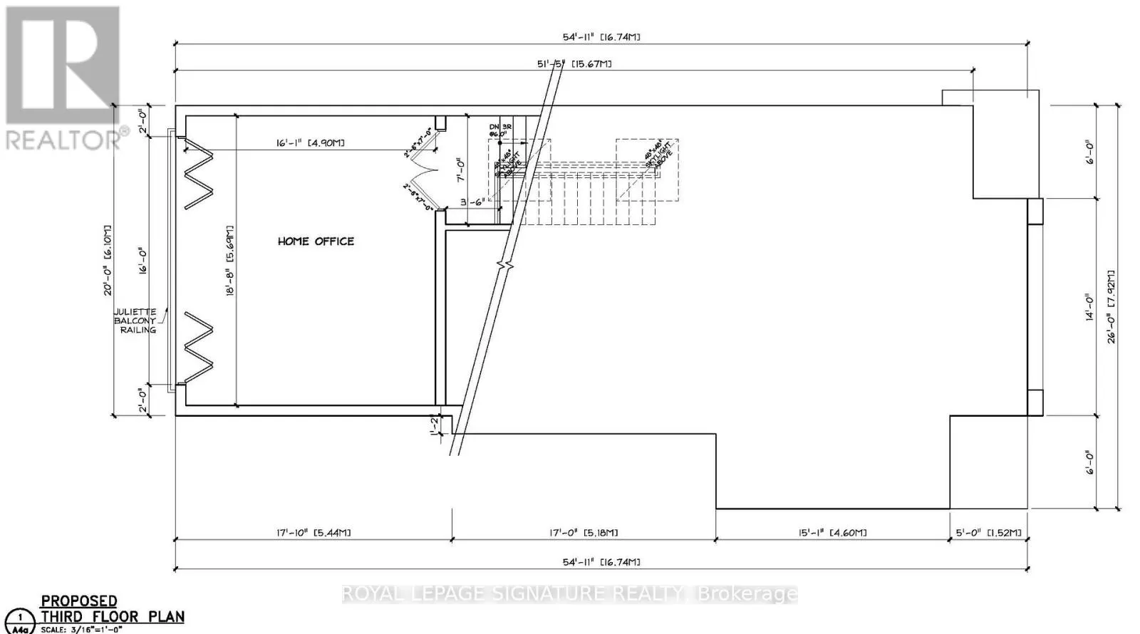
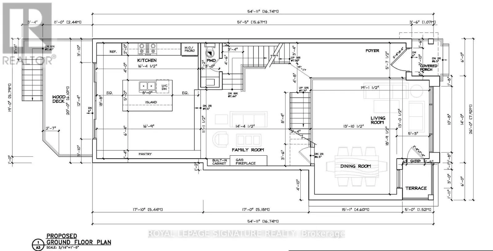
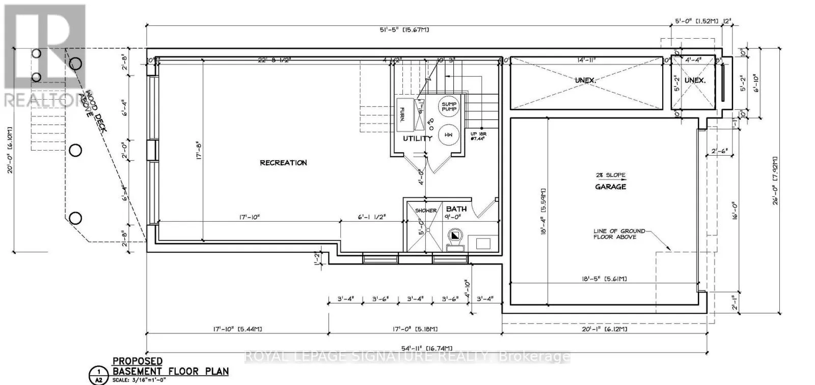
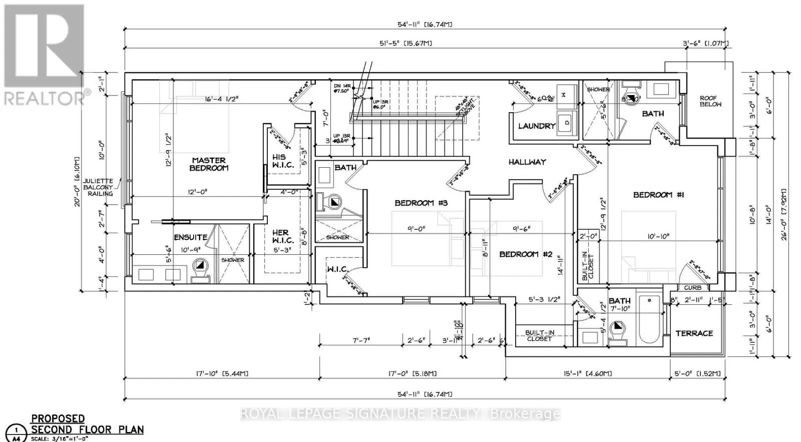
Islington & Lake Shore Drive Attention builders!! Severance Approved for this 75 x 150 foot lot to create two Lots of 37.5 x 150 Ft backing onto Rotary Peace Park and overlooking Lake Ontario!! Only Steps from the Lake and neighbourhood Beach! Building Plans ready to build two 2,723 sqft homes with open concept main floor, 4 Bedrooms on 2nd level and a massive 3rd floor fully enclosed Roof Terrace overlooking Lake Ontario! Property is backing onto the park that can be accessed via a gate directly from the backyard! The opportunities are endless with this property offering a perfect open canvas to build two dream homes or lakeside retreat. Fantastic views of park and lake. Conveniently located close to an abundance of family amenities with waterfront trails and sports facilities including Rotary Peace Park, Beach and Outdoor Pool and Colonel Samuel Beach Park. Steps to the waterfront and a small beach. Just a few minutes drive to The QEW & GO Station. Close walking distance to affluent schools, shopping, restaurants, public transportation and so much more! (id:27476)

Property Highlights

MLS® Number
W12826400
Type
Single Family
Community Name
New Toronto
Ownership Type
Freehold
Land Size
75 x 154 FT ; Irregular|under 1/2 acre
Parking Space Total
4

Building

Building Type
House
Storeys
2.00
Square Footage
2500 - 3000 sqft
Bathrooms Total
6
Bedrooms Above Ground
4
Bedrooms Total
5
Amenities
Park, Schools, Beach
Exterior Finish
Brick
Fireplace Present
No
Basement Type
N/A (Finished)
Basement Features
Walk out
Building Heating Type
Forced air
Heating Fuel
Natural gas
Building Cooling Type
Central air conditioning

Utilities

Water
Municipal water
Utility Sewer
Sanitary sewer

Location

Learn more about this property
Listing provided by:
ROYAL LEPAGE SIGNATURE REALTY
MLS® number:
W12826400
Agent:
Ira Kalemi
*Indicates required field
Name is required
Email is required
Please enter a valid phone number (e.g., 416-111-1111).

Street Spotlight - For sale