Bsmt - 230 Gainsborough Road, Toronto, Ontario M4L 3C6

Listed for:
$2,000
2 beds
1 baths
Listed 46 days ago
Triplex for rent: Bsmt - 230 Gainsborough Road, Toronto, Ontario M4L 3C6

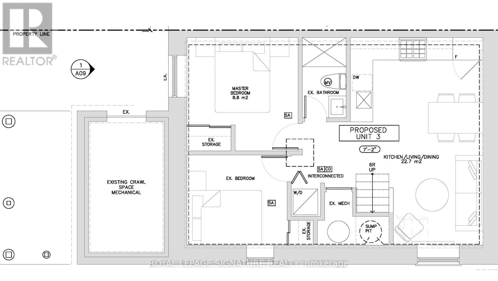
View all 21 photos

About

Coxwell/Gerrard ** AVAILABLE MAY 1ST ** Gorgeous 2 Bedroom Basement Apartment In Toronto Awaits You! This Is A Must See! Top Notch Finishes Throughout ! Fully Renovated & Modern! Located In The Upper Beaches Amongst All The Amenities That You Need And Want. The Open Concept Modern Kitchen And Living Room Stainless Steel Appliances And Large Windows ! Ensuite Laundry! Individual Heat and Cooling! This Unit Also Feature Heated Floors Throughout! Water and Heating Included in Rent! Move In And Enjoy! (id:27476)

Property Highlights

MLS® Number
E12836444
Type
Multi-family
Community Name
Woodbine Corridor

Building

Building Type
Triplex
Storeys
2.00
Square Footage
1500 - 2000 sqft
Bathrooms Total
1
Bedrooms Above Ground
2
Bedrooms Total
2
Exterior Finish
Brick
Fireplace Present
No
Basement Type
N/A
Basement Features
Apartment in basement
Building Heating Type
Radiant heat
Heating Fuel
Natural gas
Building Cooling Type
Wall unit

Utilities

Water
Municipal water
Utility Sewer
Sanitary sewer

Room Layout

Living room
Main level
Measurements not available
Dining room
Main level
Measurements not available
Kitchen
Main level
Measurements not available
Primary Bedroom
Main level
Measurements not available
Bedroom 2
Main level
Measurements not available

Location

Learn more about this property
Listing provided by:
ROYAL LEPAGE SIGNATURE REALTY
MLS® number:
E12836444
Agent:
Thomas George Pobojewski
*Indicates required field
Name is required
Email is required
Please enter a valid phone number (e.g., 416-111-1111).