12 Chatterton Boulevard, Toronto, Ontario M1M 2G2

Listed for:
$1,000,000
3 beds
1 baths
Listed 29 days ago
House for rent: 12 Chatterton Boulevard, Toronto, Ontario M1M 2G2

View all 5 photos

About

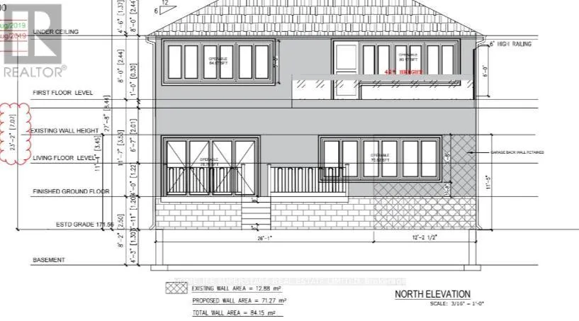
Kingston Rd. And Bellamy Rd. S. Builders, renovators, and investors. Create something exceptional in a prime location. Situated on a premium 50' x 125' lot backing onto a park, this property offers the opportunity to renovate or build a stunning 3,000 sq. ft. custom home. Permitted and approved drawings are in place. Property is being sold as-is, where-is. (id:27476)

Property Highlights

MLS® Number
E12838792
Type
Single Family
Community Name
Scarborough Village
Ownership Type
Freehold
Land Size
50 x 125 FT
Parking Space Total
3

Building

Building Type
House
Storeys
1.00
Square Footage
700 - 1100 sqft
Bathrooms Total
1
Bedrooms Above Ground
3
Bedrooms Total
3
Exterior Finish
Brick
Fireplace Present
No
Basement Type
N/A (Unfinished)
Basement Features
Building Heating Type
Forced air
Heating Fuel
Natural gas
Building Cooling Type
None

Utilities

Water
Municipal water
Utility Sewer
Sanitary sewer

Room Layout

Location

Learn more about this property
Listing provided by:
HOMELIFE SUPERSTARS REAL ESTATE LIMITED
MLS® number:
E12838792
Agent:
Stephanie Binns
*Indicates required field
Name is required
Email is required
Please enter a valid phone number (e.g., 416-111-1111).

Community Spotlight: Homes For sale in Your Neighborhood