North Side - 83-91b Walnut Avenue, Toronto, Ontario M5V 2S1

Listed for:
$37
0 beds
0 baths
Listed 38 days ago
Offices for rent: North Side - 83-91b Walnut Avenue, Toronto, Ontario M5V 2S1

View all 18 photos

About

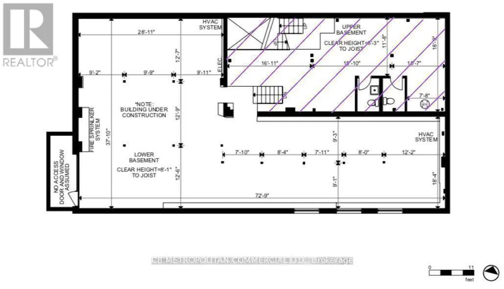
Cross Streets: Walnut Ave/King St W. ** Directions: South of King St W, East of Strachan Ave. North Side Of Beautiful, Hip, San Francisco Style, Cool Designed Open Layout Space. Stand Alone, Two floor, Ready For Your Further Build Out, Customization, And Brand Your Space To Meet Your Company's Needs. Perfect for film, production, studio and creative office. Newly Designed, Concrete Floors, High Ceilings, Metal Designed Accents, Bright, Simple Space, Large Windows Throughout. Skylights, Modern Lighting, Kitchen, laneway access, Many entrances for convenience, and to separate working spaces. Walking Distance To Heart Of King Street West, Live, Work, And Play. Many Trendy Bars And Restaurants. Parking available (id:27476)

Property Highlights

MLS® Number
C12842148
Type
Office
Community Name
Niagara
Land Size
30 x 100 FT
Parking Space Total
5

Building

Building Type
Offices
Square Footage
4885 sqft
Amenities
Public Transit
Fireplace Present
No
Basement Type
Basement Features
Building Heating Type
Forced air
Heating Fuel
Natural gas
Building Cooling Type
Fully air conditioned

Utilities

Water
Municipal water

Location

Learn more about this property
Listing provided by:
CB METROPOLITAN COMMERCIAL LTD.
MLS® number:
C12842148
Agent:
Claire Janet Blicker
*Indicates required field
Name is required
Email is required
Please enter a valid phone number (e.g., 416-111-1111).