610 - 455 Wellington Street W, Toronto, Ontario M5J 2R2

Listed for:
$2,175,000
2 beds
3 baths
Listed 27 days ago
Apartment for rent: 610 - 455 Wellington Street W, Toronto, Ontario M5J 2R2

View all 44 photos

About

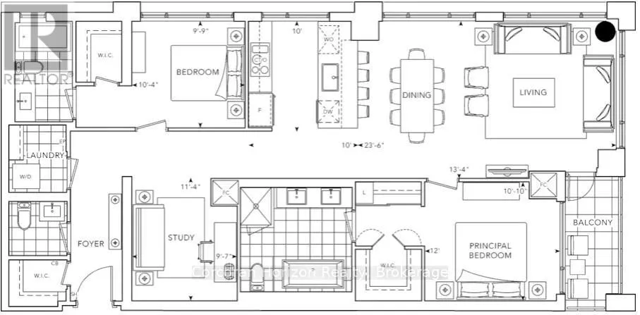
Wellington St And Spadina Ave Experience elevated downtown living in the heart of Toronto's vibrant Waterfront Communities. Tridel at The Well is a triumph of design - a luxury boutique condo rising 14 stories on Wellington Street West, overlooking the Grand Promenade below and seamlessly blending modern architectural elegance with the street's historic character. Part of downtown Toronto's most ambitious mixed-use community, this residence offers a lifestyle defined by luxury, convenience, and sophistication. This sun-filled northwest corner suite spans 1,515 sq.ft. and features 2 Bedrooms + Study and 2.5 Bathrooms, with oversized windows that flood the home with natural light and showcase dynamic city views. Thoughtfully designed with a seamless, carpet-free layout, it boasts rich hardwood floors, engineered quartz countertops, and a full suite of premium Miele built-in appliances. The spacious primary retreat is a serene sanctuary, complete with a spa-inspired ensuite and boutique-style his and hers walk-in closets. A generous second bedroom, dedicated study, and beautifully appointed bathrooms provide flexibility and comfort for modern living. Enjoy 24-hour concierge and security along with an exceptional collection of amenities, including a state-of-the-art fitness centre and weight area, private dining room, entertainment lounge, elegant fireplace lounge, and a stunning outdoor pool with tanning deck (seasonal). Complete with 1 parking space and 1 locker, this residence offers a Walk Score of 94 and Transit Score of 100 - placing you steps from world-class dining, shopping, and the energy of Wellington Street West. This is downtown Toronto living at its finest - sophisticated, sunlit, and seamlessly connected to everything the city has to offer. (id:27476)

Property Highlights

MLS® Number
C12848836
Type
Single Family
Community Name
Waterfront Communities C1
Maintenance Fee
1773.00
Ownership Type
Condominium/Strata
Parking Space Total
1

Building

Building Type
Apartment
Square Footage
1400 - 1599 sqft
Bathrooms Total
3
Bedrooms Above Ground
2
Bedrooms Total
2
Amenities
Exercise Centre, Security/Concierge Park, Public Transit
Exterior Finish
Concrete
Fireplace Present
No
Basement Type
None
Basement Features
Building Heating Type
Coil Fan
Heating Fuel
Natural gas
Building Cooling Type
Central air conditioning

Location

Learn more about this property
Listing provided by:
Corcoran Horizon Realty
MLS® number:
C12848836
Agent:
Rebecca Kesten-johnson
*Indicates required field
Name is required
Email is required
Please enter a valid phone number (e.g., 416-111-1111).

Street Spotlight - For sale