206 - 1 Falaise Road, Toronto, Ontario M1E 0B9

Listed for:
$1,700
1 beds
1 baths
Listed 26 days ago
Apartment for rent: 206 - 1 Falaise Road, Toronto, Ontario M1E 0B9

View all 13 photos

About

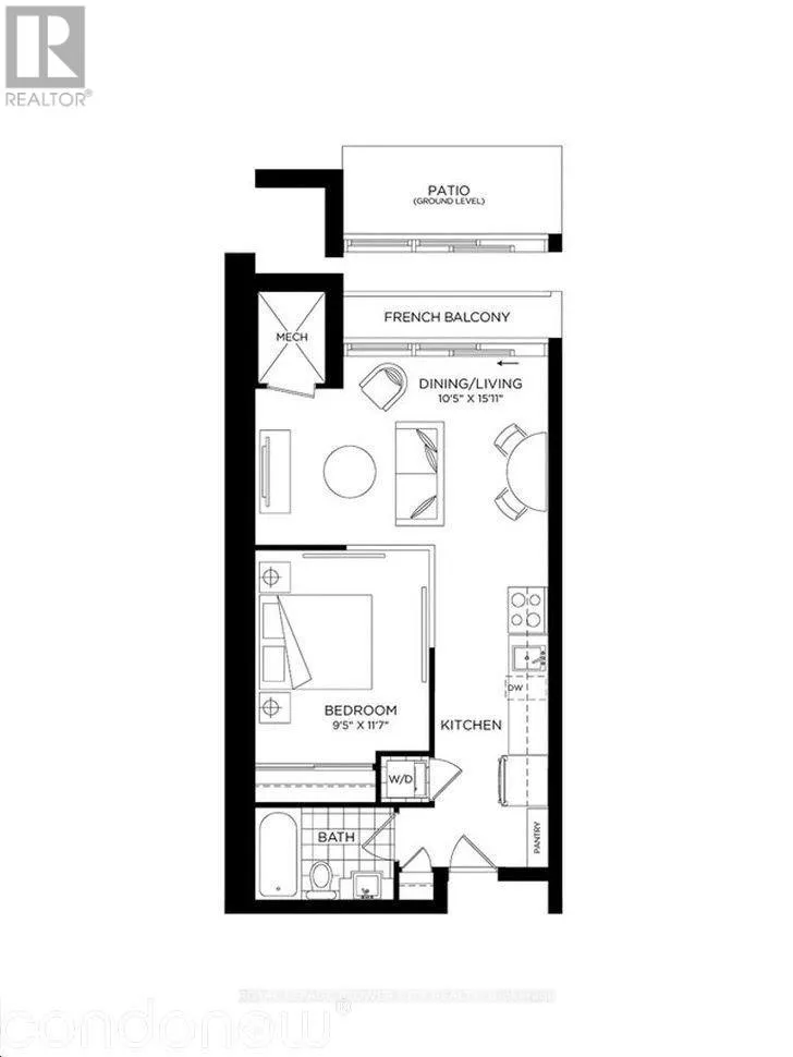
Kingston Rd & Morningside Sweetlife Condos. 2 Years Old Unit With Laminate Floor 517Sqft + French Balcony. Steps To Centennial College And University of Toronto Nearby. Shopping And Dining Experience Is Never Dull. Located Right off Kingston Road, Everything Is Easily Accessible. Necessities Like Beer Store, Shoppers, Food Basics, CIBC, NO Frills Are In Close Proximity. Excellent Amenities With Lush Gardens, Fitness Room And Yoga Centre With Party Room. (id:27476)

Property Highlights

MLS® Number
E12855380
Type
Single Family
Community Name
West Hill
Ownership Type
Condominium/Strata
Parking Space Total
1

Building

Building Type
Apartment
Square Footage
500 - 599 sqft
Bathrooms Total
1
Bedrooms Above Ground
1
Bedrooms Total
1
Amenities
Security/Concierge, Exercise Centre, Party Room, Visitor Parking, Separate Electricity Meters Hospital, Park, Place of Worship, Public Transit
Exterior Finish
Concrete
Fireplace Present
No
Basement Type
None
Basement Features
Building Heating Type
Forced air
Heating Fuel
Electric
Building Cooling Type
Central air conditioning

Location

Learn more about this property
Listing provided by:
ROYAL LEPAGE FLOWER CITY REALTY
MLS® number:
E12855380
Agent:
Ravi Sohal
*Indicates required field
Name is required
Email is required
Please enter a valid phone number (e.g., 416-111-1111).

Street Spotlight - For rent