2708 - 1928 Lakeshore Boulevard W, Toronto, Ontario M6S 0B1

Listed for:
$2,750
2 beds
2 baths
Listed 26 days ago
Apartment for rent: 2708 - 1928 Lakeshore Boulevard W, Toronto, Ontario M6S 0B1

View all 29 photos

About

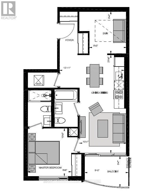
Cross Streets: Windermere Ave And Lakeshore. ** Directions: Windermere Ave and Lakeshore - North East Corner. Almost new Mirabella Condos located at Lakeshore and Windermere. High floor with amazing "forever" south lake views. Lots of sunlight. Functional layout with 1 bedroom (ensuite bathroom) and a large den (that can be used as a second bedroom). Large family area, kitchen, laundry and a second full bathroom. Lots of upgrades. Appliances (fridge, oven/cooktop, dishwasher, washer/dryer). NOTE: Unit is currently occupied and pictures are from the time when unit was vacant. Tenants must pay for all utilities. Landlord would be responsible for condo dues. (id:27476)

Property Highlights

MLS® Number
W12857084
Type
Single Family
Community Name
South Parkdale
Ownership Type
Condominium/Strata
Parking Space Total
1

Building

Building Type
Apartment
Square Footage
700 - 799 sqft
Bathrooms Total
2
Bedrooms Above Ground
1
Bedrooms Total
2
Amenities
Security/Concierge, Exercise Centre, Visitor Parking, Storage - Locker Park, Public Transit
Exterior Finish
Concrete
Fireplace Present
Yes
Basement Type
None
Basement Features
Building Heating Type
Forced air
Heating Fuel
Electric
Building Cooling Type
Central air conditioning

Location

Learn more about this property
Listing provided by:
Right At Home Realty, Brokerage
MLS® number:
W12857084
Agent:
Neeraj Garg
*Indicates required field
Name is required
Email is required
Please enter a valid phone number (e.g., 416-111-1111).

Street Spotlight - For rent