513 - 500 Dupont Street, Toronto, Ontario M6G 1Y7

Listed for:
$2,900
2 beds
2 baths
Listed 22 days ago
Apartment for rent: 513 - 500 Dupont Street, Toronto, Ontario M6G 1Y7

View all 25 photos

About

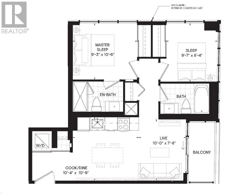
Cross Streets: Dupont St & Bathurst St. ** Directions: North side of Dupont St; West of Bathurst St. Welcome to Oscar Residences in the Annex, where modern living meets everyday convenience. This corner unit in a modern boutique building offers a bright open concept layout with 2 bedrooms, both with large windows and plenty of natural light, and 2 full bathrooms. The sleek kitchen features stainless steel appliances and quartz countertops. Located in a quiet residential pocket close to downtown with easy access to transit. Walkscore 91 and Transit Score 96. About a 10-minute walk to Dupont Subway Station and a short walk to Loblaws and Farm Boy. Close to George Brown College, shops, restaurants, schools, and nearby parks. Building amenities include 24/7 concierge, parcel room, outdoor BBQ terrace, chef's kitchen and dining room, theatre room, and gym. (photos taken previously) (id:27476)

Property Highlights

MLS® Number
C12873452
Type
Single Family
Community Name
Annex
Ownership Type
Condominium/Strata

Building

Building Type
Apartment
Square Footage
600 - 699 sqft
Bathrooms Total
2
Bedrooms Above Ground
2
Bedrooms Total
2
Amenities
Security/Concierge, Exercise Centre, Party Room
Exterior Finish
Concrete
Fireplace Present
No
Basement Type
None
Basement Features
Building Heating Type
Forced air
Heating Fuel
Natural gas
Building Cooling Type
Central air conditioning

Location

Learn more about this property
Listing provided by:
HOMELIFE NEW WORLD REALTY INC.
MLS® number:
C12873452
Agent:
Tammy Lee
*Indicates required field
Name is required
Email is required
Please enter a valid phone number (e.g., 416-111-1111).

Street Spotlight - For rent