702 - 89 Church Street, Toronto, Ontario M5C 2G3

Listed for:
$2,200
1 beds
1 baths
Listed 20 days ago
Apartment for rent: 702 - 89 Church Street, Toronto, Ontario M5C 2G3

View all 21 photos

About

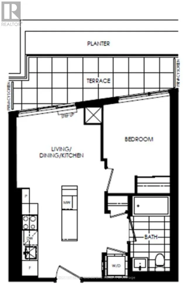
Church St/Richmond St E Featuring One Bedroom Terrace suite at The Saint Condos. Lots of upgrades, large center island, high ceiling, walkout to large outdoor terrace space and great layout. Steps from TMU, Eaton Center, Transit, Financial district, St James Park, St Lawrence Market, and everything urban living has to offer. High Speed Internet included. Don't miss this suite. (id:27476)

Property Highlights

MLS® Number
C12874658
Type
Single Family
Community Name
Church-Yonge Corridor
Ownership Type
Condominium/Strata

Building

Building Type
Apartment
Square Footage
0 - 499 sqft
Bathrooms Total
1
Bedrooms Above Ground
1
Bedrooms Total
1
Amenities
Hospital, Public Transit
Exterior Finish
Concrete
Fireplace Present
No
Basement Type
None
Basement Features
Building Heating Type
Heat Pump
Heating Fuel
Electric
Building Cooling Type
Central air conditioning

Location

Learn more about this property
Listing provided by:
ROYAL LEPAGE SIGNATURE REALTY
MLS® number:
C12874658
Agent:
Alex Melconian
*Indicates required field
Name is required
Email is required
Please enter a valid phone number (e.g., 416-111-1111).

Street Spotlight - For rent