R1-2 - 525 University Avenue, Toronto, Ontario M5G 2L3

Listed for:
$28
0 beds
0 baths
Listed 35 days ago
Offices for rent: R1-2 - 525 University Avenue, Toronto, Ontario M5G 2L3

View all 8 photos

About

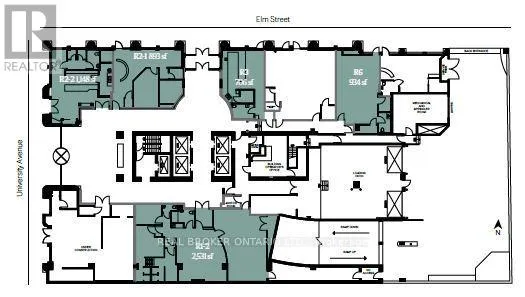
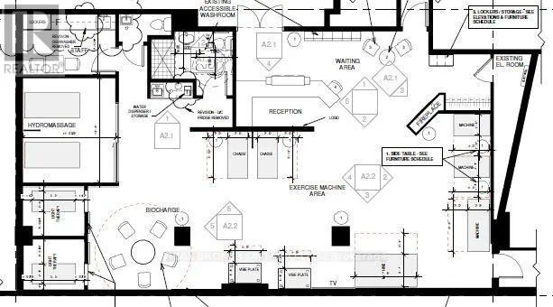
Cross Streets: Elm St. ** Directions: South East corner University & Elm. Position your business at the center of one of Canada's most influential healthcare and research corridors. Unit R1-2 offers a rare ground-floor leasing opportunity in Toronto's renowned Discovery District. Located at the base of a 192,771 sq. ft. office tower, this space benefits from lobby access, strong pedestrian traffic, and exceptional visibility within a professionally managed building. The unit has recently undergone a modern appealing renovation, offering open spaces and complete washrooms. Unmatched Healthcare location, this property is steps from some of Canada's most respected hospitals and research institutions, including: Toronto General Hospital, Princess Margaret Cancer Centre, Mount Sinai Hospital, Hospital for Sick Children. The surrounding institutions also include the world-leading innovation hub MaRS Discovery District and the academic strength of the University of Toronto. These institutions generate a constant flow of healthcare professionals, researchers, patients, and visitors, creating strong demand for medical, wellness, and professional services. Ideal Uses include a wide range of medical and service-based users, including: Physiotherapy, Chiropractic, Pilates, rehabilitation studios, Wellness and treatment clinics, Specialized healthcare services, Professional or medical support offices. (id:27476)

Property Highlights

MLS® Number
C12883064
Type
Office
Community Name
Bay Street Corridor
Land Size
2531 ac
Parking Space Total
1

Building

Building Type
Offices
Square Footage
2531 sqft
Amenities
Public Transit
Fireplace Present
No
Basement Type
Basement Features
Building Heating Type
Forced air
Heating Fuel
Natural gas
Building Cooling Type
Fully air conditioned

Utilities

Water
Municipal water

Location

Learn more about this property
Listing provided by:
REAL BROKER ONTARIO LTD.
MLS® number:
C12883064
Agent:
Danny Balkos
*Indicates required field
Name is required
Email is required
Please enter a valid phone number (e.g., 416-111-1111).