4662 Dundas Street W, Toronto, Ontario M9A 1A6

Listed for:
$2,249,900
6 beds
5 baths
Listed 16 days ago
House for rent: 4662 Dundas Street W, Toronto, Ontario M9A 1A6

View all 49 photos

About

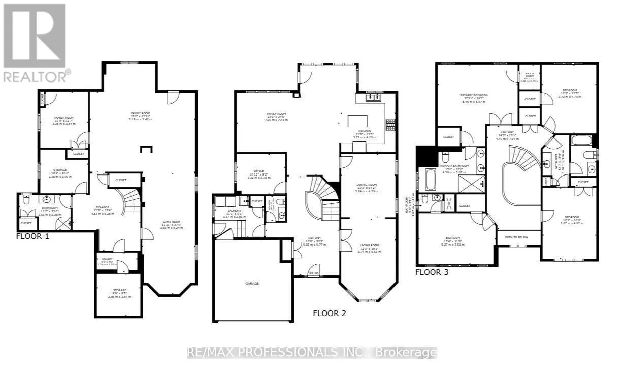
Dundas St W/Islington Ave A perfect family home on a large (50 x 150) lot in the desirable Chestnut Hills neighbourhood. This 4 Bedroom home is meticulously maintained and has been in the same family for 25 years. Built in 2000, this custom all-brick home boasts over 3200 of above grade sq feet + 1500 sq feet in the lower level. The main floor features hardwood flooring throughout, a welcoming foyer with spiral oak staircase, *9 ft ceilings, formal dining and living room, a separate office/den(+) and large open concept kitchen & family room overlooking the landscaped yard with towering/mature trees. Powder room and large laundry area on main floor with exits to garage and side yard. The upper level features 4 large bedrooms + 3 full bathrooms. The primary bedroom w/ his and hers walk-in closets and a 5-piece ensuite bathroom with heated flooring. The 2nd and 3rd bedrooms feature large closets and access to a large jack and jill 4-piece washroom. The 4th bedroom w/ 3 piece ensuite bathroom - perfect for guests/ in-law or nanny suite. A functional and efficient layout! (see floor plan and virtual tour) The lower level was professionally finished - the perfect man cave! Large rec room/family room area + games room + walk-out to yard, *8 ft ceilings, additional bedroom with closet, large 3 piece washroom, cold room with sump pump + tons of storage space! *New (2024) Heat Pump- efficient duel system heat & ac + furnace. *All updated insulation in Attic (2024) Conveniently located on Dundas and does sit back from the road offering a large 8+ car driveway with stamped concrete walkways. The setting in the backyard is stunning with large/mature trees, custom three-tiered deck, sand box, fully fenced and landscaped. Located in the luxurious Edenbridge/Humber Valley Community and nestled in the catchment of one of the best school districts in the GTA - close to Our Lady of Sorrows, Kingsway College School, ECI and more. Close to Humbertown Park and Shops, quick access to TTC and GO Transit & more! (id:27476)

Property Highlights

MLS® Number
W12889128
Type
Single Family
Community Name
Edenbridge-Humber Valley
Ownership Type
Freehold
Land Size
50 x 150 FT
Parking Space Total
10

Building

Building Type
House
Storeys
2.00
Square Footage
3000 - 3500 sqft
Bathrooms Total
5
Bedrooms Above Ground
4
Bedrooms Total
6
Exterior Finish
Brick
Fireplace Present
No
Basement Type
N/A (Finished)
Basement Features
Walk out
Building Heating Type
Forced air, Heat Pump, Not known
Heating Fuel
Electric, Natural gas
Building Cooling Type
Central air conditioning

Utilities

Water
Municipal water
Utility Sewer
Sanitary sewer

Room Layout

Recreational, Games room
Lower level
7.18 m x 5.47 m
Games room
Lower level
8.24 m x 3.63 m
Bedroom 5
Lower level
3.84 m x 3.28 m
Living room
Main level
5.51 m x 3.74 m
Dining room
Main level
4.33 m x 3.74 m
Kitchen
Main level
4.03 m x 3.73 m
Family room
Main level
7.48 m x 7 m
Office
Main level
3.32 m x 2.78 m
Laundry room
Main level
3.37 m x 2.83 m
Primary Bedroom
Upper Level
5.57 m x 5.45 m
Bedroom 2
Upper Level
4.7 m x 3.73 m
Bedroom 3
Upper Level
4.87 m x 3.67 m
Bedroom 4
Upper Level
5.27 m x 3.51 m

Location

Learn more about this property
Listing provided by:
RE/MAX PROFESSIONALS INC.
MLS® number:
W12889128
Agent:
Dan Saracino
*Indicates required field
Name is required
Email is required
Please enter a valid phone number (e.g., 416-111-1111).

Street Spotlight - For sale