1103 - 70 Distillery Lane, Toronto, Ontario M5A 0E3

Listed for:
$779,900
2 beds
2 baths
Listed 16 days ago
Apartment for rent: 1103 - 70 Distillery Lane, Toronto, Ontario M5A 0E3

View all 42 photos

About

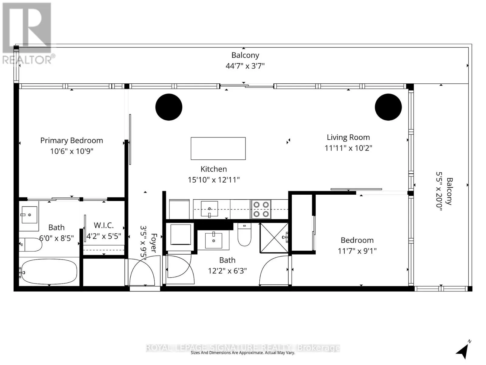
Cherry And Lakeshore Welcome to suite #1103, a large corner unit in the heart of the Distillery District. The modern kitchen features stainless steel appliances and a breakfast island overlooking the combined living and dining space. Floor-to-ceiling windows featuring custom blinds throughout bring in abundant natural light and open to a wraparound terrace with city views. A split-bedroom layout places the bedrooms on opposite sides of the unit for added privacy. The primary bedroom includes a walk-in closet, blackout blinds, and a 4-piece ensuite. The second bedroom offers a closet and its own 3-piece ensuite. Wonderfully maintained, this suite offers over 800 sq ft of interior living space plus the expansive terrace. Located steps from shops, restaurants, and cafes in the Historical Distillery District, with easy access to public transit and parks. Includes parking and locker. (id:27476)

Property Highlights

MLS® Number
C12890126
Type
Single Family
Community Name
Waterfront Communities C8
Maintenance Fee
892.66
Ownership Type
Condominium/Strata
Parking Space Total
1

Building

Building Type
Apartment
Square Footage
800 - 899 sqft
Bathrooms Total
2
Bedrooms Above Ground
2
Bedrooms Total
2
Amenities
Security/Concierge, Exercise Centre, Party Room, Storage - Locker
Exterior Finish
Concrete
Fireplace Present
No
Basement Type
None
Basement Features
Building Heating Type
Forced air
Heating Fuel
Natural gas
Building Cooling Type
Central air conditioning

Location

Learn more about this property
Listing provided by:
ROYAL LEPAGE SIGNATURE REALTY
MLS® number:
C12890126
Agent:
Tom Clarke Storey
*Indicates required field
Name is required
Email is required
Please enter a valid phone number (e.g., 416-111-1111).