1415 Gerrard Street E, Toronto, Ontario M4L 1Z5

Listed for:
$4,295,000
0 beds
0 baths
Listed 15 days ago
1415 Gerrard Street E, Toronto, Ontario M4L 1Z5

View all 30 photos

About

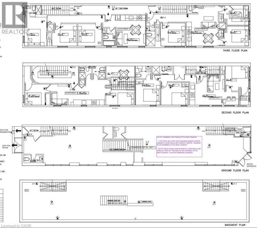
Gerrard St E & Hiawatha Rd Turn-key mixed-use investment opportunity in prime downtown Toronto (1 Commercial + 5 Residential). Fully renovated building featuring a large main-floor commercial unit with full basement plus 5 high-end residential apartments above. Situated on a high-exposure corner lot offering excellent street presence. With over 7,000 sq ft of leased space with three on-site parking spaces, this a low-maintenance, cash flowing asset ideal for investors seeking a stable mixed-use property in a highly desirable urban location. Simply acquire and enjoy this fully upgraded, income-producing building. Contact us today for the full listing package! The seller is willing to provide a 75% Vendor Take Back (VTB) mortgage at 6.89% fully open for 2 years to qualified buyers. (id:27476)

Property Highlights

MLS® Number
40812208
Type
Other
Ownership Type
Freehold
Land Size
under 1/2 acre

Building

Storeys
3.00
Square Footage
7260 sqft
Amenities
Hospital, Public Transit, Schools
Exterior Finish
Aluminum siding, Stucco
Fireplace Present
No
Basement Type
Full
Basement Features
Building Heating Type
Heating Fuel
Building Cooling Type

Utilities

Water
Municipal water
Utility Sewer
Municipal sewage system

Location

Learn more about this property
Listing provided by:
Realty Network
MLS® number:
40812208
Agent:
Adam Colalillo
*Indicates required field
Name is required
Email is required
Please enter a valid phone number (e.g., 416-111-1111).