201 - 113 Dupont Street, Toronto, Ontario M5R 1V4

Listed for:
$2,895,000
2 beds
3 baths
Listed 13 days ago
Apartment for rent: 201 - 113 Dupont Street, Toronto, Ontario M5R 1V4

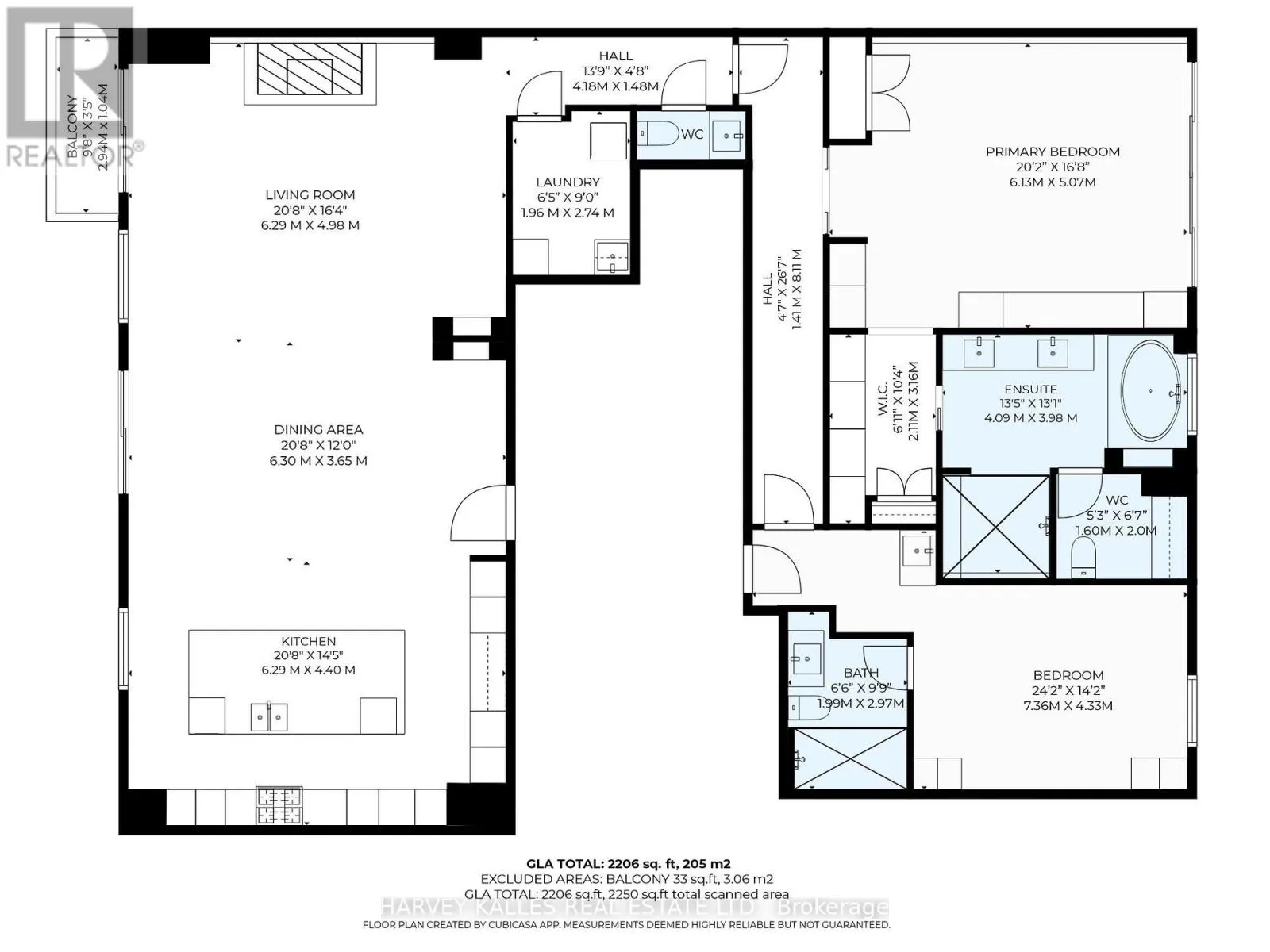
View all 36 photos

About

Cross Streets: Dupont St / Avenue Road. ** Directions: South side of Dupont St, between Davenport Rd & Avenue Road. Rarely available designer loft in an intimate boutique building of just seven residences, offering the scale, privacy, and feel of a luxury home in the heart of the Annex. This exceptional suite features two bedrooms, each with its own private ensuite, plus a powder room. Exposed brick walls and stunning white oak herringbone floors create a warm and sophisticated atmosphere throughout. The designer kitchen is beautifully appointed with premium appliances including a Sub-Zero refrigerator and freezer, Wolf gas range, built-in Miele stainless steel wall ovens and microwave, panelled dishwasher, and a coffee & water station complete with reverse osmosis system. The primary suite offers a true five-star retreat with custom lined built-in closets and a luxurious five-piece ensuite featuring a freestanding soaking tub and separate steam shower. The second bedroom enjoys its own private entrance, making it ideal as a guest or teenage suite, which this space includes a three-piece ensuite, wet bar, and custom built-in cabinetry. This residence is fully automated with a Control4 system for lighting and mechanical blinds, along with Sonos surround sound throughout. Two garage parking spaces at grade are included. Unbeatable midtown location just steps to Yorkville, cafés, restaurants, and boutique shopping. All furnishings are available for purchase. (id:27476)

Property Highlights

MLS® Number
C12899840
Type
Single Family
Community Name
Annex
Maintenance Fee
2647.88
Ownership Type
Condominium/Strata
Parking Space Total
2

Building

Building Type
Apartment
Square Footage
2000 - 2249 sqft
Bathrooms Total
3
Bedrooms Above Ground
2
Bedrooms Total
2
Amenities
Fireplace(s), Storage - Locker Public Transit
Exterior Finish
Brick
Fireplace Present
Yes
Basement Type
None
Basement Features
Building Heating Type
Forced air
Heating Fuel
Natural gas
Building Cooling Type
Central air conditioning

Location

Learn more about this property
Listing provided by:
HARVEY KALLES REAL ESTATE LTD.
MLS® number:
C12899840
Agent:
Adam Samuel
*Indicates required field
Name is required
Email is required
Please enter a valid phone number (e.g., 416-111-1111).

Street Spotlight - For sale