Uph05 - 56 Annie Craig Drive, Toronto, Ontario M8V 0C8

Listed for:
$4,950
3 beds
3 baths
Listed 11 days ago
Apartment for rent: Uph05 - 56 Annie Craig Drive, Toronto, Ontario M8V 0C8

View all 43 photos

About

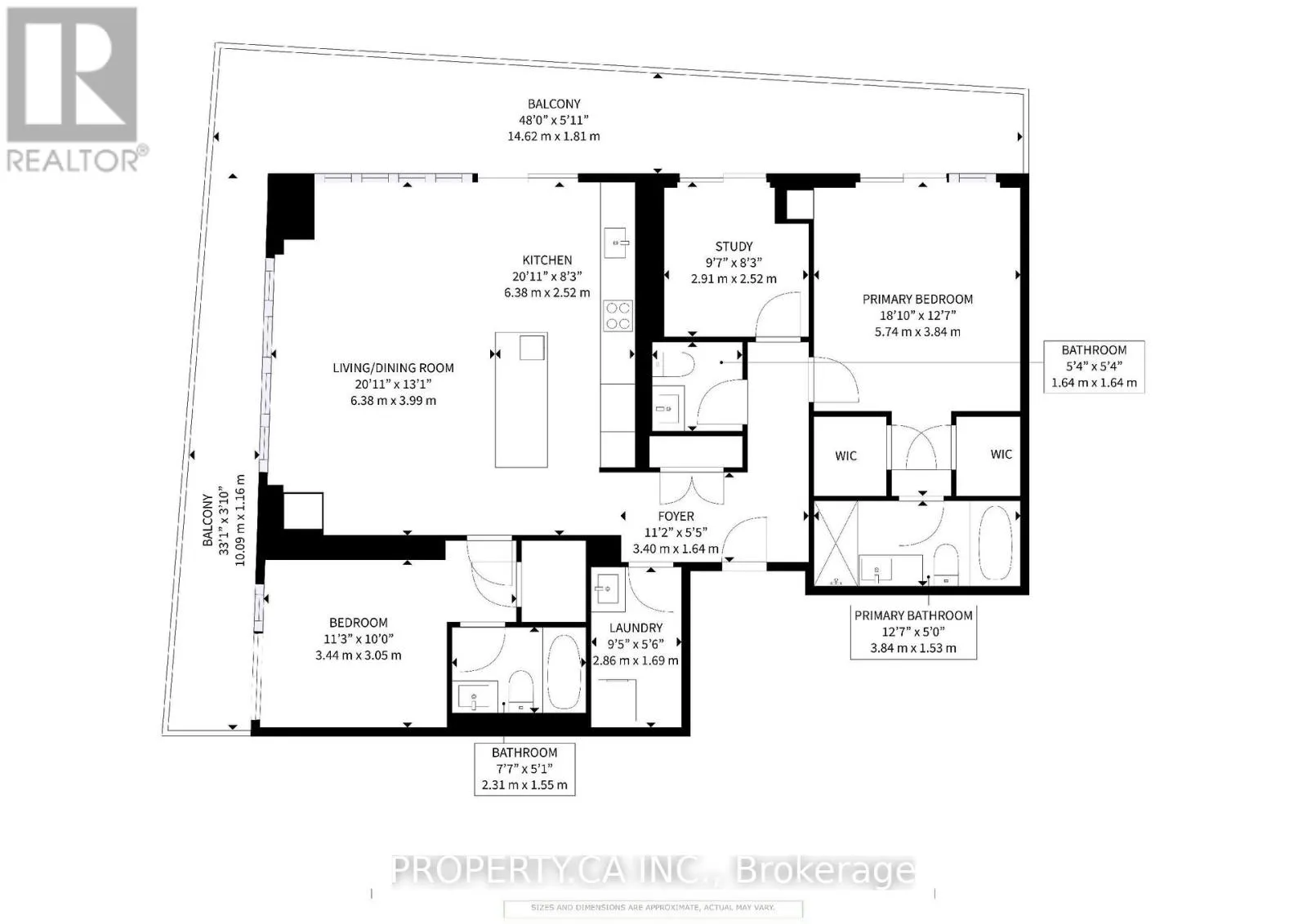
Park Lawn Rd & Lake Shore Blvd W Upper Penthouse at Lago with breathtaking lake + skyline views! Bright 3-bed/3 bath suite with a wide layout, floor-to-ceiling windows, and a huge 400 sq.ft. balcony. Modern kitchen, spacious living area, split-bedroom design, primary ensuite + walk-in closet. Premium finishes+ high ceilings. 2 premium side-by-side parking spots (one with an EV charger) and locker. Lago offers resort-style amenities: indoor pool, hot tub, sauna, full gym, theatre room, BBQ terrace, dog-wash station, party room, guest suites, visitor parking, and 24-hour concierge. All in the heart of Humber Bay Shores-where convenience meets true waterfront living. (id:27476)

Property Highlights

MLS® Number
W12906220
Type
Single Family
Community Name
Mimico
Ownership Type
Condominium/Strata
Parking Space Total
1

Building

Building Type
Apartment
Square Footage
1200 - 1399 sqft
Bathrooms Total
3
Bedrooms Above Ground
3
Bedrooms Total
3
Amenities
Security/Concierge, Exercise Centre, Visitor Parking Marina, Park, Public Transit
Exterior Finish
Concrete
Fireplace Present
No
Basement Type
None
Basement Features
Building Heating Type
Heat Pump
Heating Fuel
Electric
Building Cooling Type
Central air conditioning

Location

Learn more about this property
Listing provided by:
PROPERTY.CA INC.
MLS® number:
W12906220
Agent:
Julian Kashani
*Indicates required field
Name is required
Email is required
Please enter a valid phone number (e.g., 416-111-1111).

Street Spotlight - For rent