317 - 120 Varna Drive, Toronto, Ontario M6A 0B3

Listed for:
$644,999
2 beds
1 baths
Listed 55 days ago
Apartment for rent: 317 - 120 Varna Drive, Toronto, Ontario M6A 0B3

View all 18 photos

About

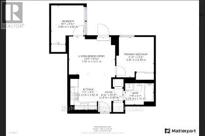
Cross Streets: Allen Rd/ Ranee. ** Directions: Allen Rd/ Ranee/ Yorkdale Subway Line. Yorkdale Condo 2 Listed to sell. Perfect opportunity for all investors, first time home buyers and new families starting up. This 3 year "new" building features a true luxury suite with 2 bedrooms, 1 full bathroom, 1 parking, 1 Locker, ensuite laundry, smooth ceilings, huge Terrace to enjoy. "Luxury" building located a few steps to Yorkdale Mall and at the Yorkdale Subway Line.Bedrooms Apart from each other with more privacy and stainless steel appliances. Building features 24 hrs security concierge,party room, exercise room, outdoor patio, visitors parking and more. One underground parking and one storage locker owned and included. Steps to Yorkdale Mall and Subway for your convenience. For investors, its currently tenanted bringing in $2850.00 a month in rent. Do not let this opportunity pass you by. (id:27476)

Property Highlights

MLS® Number
C12909744
Type
Single Family
Community Name
Englemount-Lawrence
Maintenance Fee
542.46
Ownership Type
Condominium/Strata
Parking Space Total
1

Building

Building Type
Apartment
Square Footage
600 - 699 sqft
Bathrooms Total
1
Bedrooms Above Ground
2
Bedrooms Total
2
Amenities
Security/Concierge, Exercise Centre, Visitor Parking, Recreation Centre, Storage - Locker Hospital, Park, Place of Worship, Public Transit, Schools
Exterior Finish
Concrete
Fireplace Present
No
Basement Type
None
Basement Features
Building Heating Type
Forced air
Heating Fuel
Natural gas
Building Cooling Type
Central air conditioning

Location

Learn more about this property
Listing provided by:
RE/MAX EXPERTS
MLS® number:
C12909744
Agent:
Vitor Almeida
*Indicates required field
Name is required
Email is required
Please enter a valid phone number (e.g., 416-111-1111).

Street Spotlight - For sale