3808 - 7 Grenville Street, Toronto, Ontario M4Y 0E9

Listed for:
$2,100
1 beds
1 baths
Listed 9 days ago
Apartment for rent: 3808 - 7 Grenville Street, Toronto, Ontario M4Y 0E9

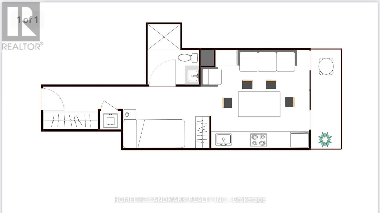
View all 16 photos

About

Yonge & college Welcome To The Luxury YC Condos Located In The Core Downtown Area! Excellent Yonge/College Location With Beautiful Bright East City AndLake View!! 386 SQ FT Bright Studio With Den, And 68 SQ FT Open Balcony facing To Beautiful Downtown Toronto and Lake! Functional Layout,Den Can Accommodate A Double Bed! Indoor Pool, Gym, Lounge...Etc.; Walking Distance Steps To Subway, U Of T, Ryerson, Restaurants,Shopping And Supermarket.Fantastic Neighbourhood, Easy Access To Eaton Centre, Loblaws, And Parks. (id:27476)

Property Highlights

MLS® Number
C12912840
Type
Single Family
Community Name
Bay Street Corridor
Ownership Type
Condominium/Strata

Building

Building Type
Apartment
Square Footage
0 - 499 sqft
Bathrooms Total
1
Bedrooms Total
1
Exterior Finish
Concrete
Fireplace Present
No
Basement Type
None
Basement Features
Building Heating Type
Forced air
Heating Fuel
Natural gas
Building Cooling Type
Central air conditioning

Location

Learn more about this property
Listing provided by:
HOMELIFE LANDMARK REALTY INC.
MLS® number:
C12912840
Agent:
Lisa Liu
*Indicates required field
Name is required
Email is required
Please enter a valid phone number (e.g., 416-111-1111).

Street Spotlight - For rent