222 - 6 Greenbriar Road, Toronto, Ontario M2K 0H6

Listed for:
$2,200
1 beds
1 baths
Listed 8 days ago
Apartment for rent: 222 - 6 Greenbriar Road, Toronto, Ontario M2K 0H6

View all 25 photos

About

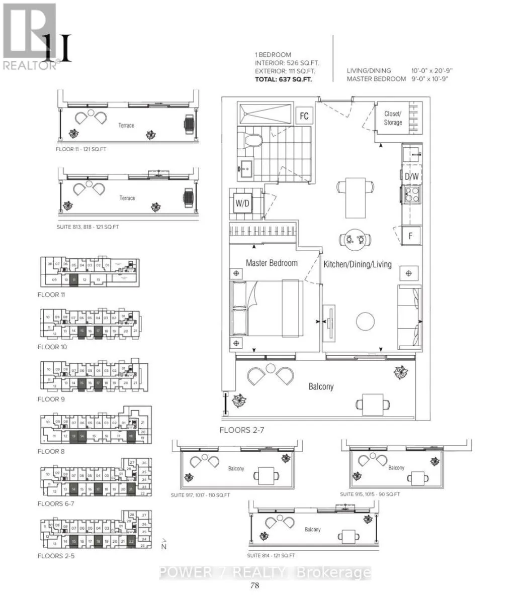
Cross Streets: Bayview and Sheppard Ave E. ** Directions: Greenbriar Rd. Bayview At The Village - stylish 1-bedroom residence with oversized balcony and upscale finishes. Bright, open-concept 526 sq ft interior with soaring 9-ft ceilings features a sleek integrated kitchen with panelled appliances, quartz counters, and a functional island with breakfast bar. The smart, *efficient* floor plan offers a generous living/dining area with direct walk-out to an impressive 111 sq ft balcony complete with gas line for BBQ, perfect for relaxing or entertaining. Well-proportioned bedroom provides a comfortable retreat, complemented by a separate large linen closet in the foyer. The spacious, spa-inspired bathroom includes an oversized glass shower and contemporary vanity for a luxurious daily routine. Suite also comes with full-size stacked laundry, tall interior doors, and a separate storage area, creating a clean, streamlined living space with no wasted square footage. Residents enjoy exceptional building amenities; fitness centre, party/meeting room, guest suites, 24-hr concierge and more, in a prime location just steps to both Bayview and Bessarion subway stations, Bayview Village Shopping Centre, restaurants, groceries, parks and quick access to Hwy 401 and Hwy 404. (id:27476)

Property Highlights

MLS® Number
C12913420
Type
Single Family
Community Name
Bayview Village
Ownership Type
Condominium/Strata

Building

Building Type
Apartment
Square Footage
500 - 599 sqft
Bathrooms Total
1
Bedrooms Above Ground
1
Bedrooms Total
1
Amenities
Visitor Parking, Security/Concierge, Party Room, Exercise Centre
Exterior Finish
Brick
Fireplace Present
No
Basement Type
None
Basement Features
Building Heating Type
Forced air
Heating Fuel
Electric
Building Cooling Type
Central air conditioning

Location

Learn more about this property
Listing provided by:
POWER 7 REALTY
MLS® number:
C12913420
Agent:
Belle Wu
*Indicates required field
Name is required
Email is required
Please enter a valid phone number (e.g., 416-111-1111).

Street Spotlight - For rent