4111 - 180 Front Street E, Toronto, Ontario M5A 0A9

Listed for:
$1,900
0 beds
1 baths
Listed 12 days ago
Apartment for rent: 4111 - 180 Front Street E, Toronto, Ontario M5A 0A9

View all 9 photos

About

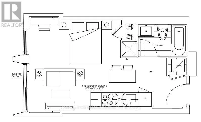
Cross Streets: Front St E & Sherbourne St. ** Directions: East. The Whitfield - the brand new building by Menkes. Sun-filled west-facing studio unit, with unobstructed west city view and lake view. Functional layout for bed, sofa, TV, study desk and dining table. Modern kitchen with high-end appliances. Steps to St. Lawrence Market and transit-perfect for professionals. BELL HIGH SPEED INTERNET INCLUDED in rent till Feb 2028). (id:27476)

Property Highlights

MLS® Number
C12919534
Type
Single Family
Community Name
Moss Park
Ownership Type
Condominium/Strata

Building

Building Type
Apartment
Square Footage
0 - 499 sqft
Bathrooms Total
1
Exterior Finish
Concrete
Fireplace Present
No
Basement Type
None
Basement Features
Building Heating Type
Other
Heating Fuel
Building Cooling Type
Central air conditioning

Location

Learn more about this property
Listing provided by:
HOMELIFE LANDMARK REALTY INC.
MLS® number:
C12919534
Agent:
Winnie Yunyi Huang
*Indicates required field
Name is required
Email is required
Please enter a valid phone number (e.g., 416-111-1111).

Street Spotlight - For rent